![]() |
|
|
|
|
|
|
|
|
|
| 通知公告: |
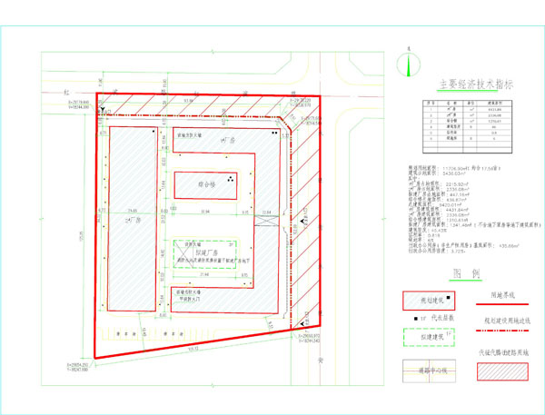
沈阳市北华医材有限公司“综合楼、1-2#厂房(一期)”建设项目总平面规划方案批前公示
经沈阳市规划和国土资源局于洪分局建审科审核,拟批准沈阳市北华医材有限公司位于沈阳市于洪区永旺街16号的“综合楼、1-2#厂房(一期)”总平面规划方案,现对该项目总平面规划方案进行公示。
公示内容如下:
公示日期:2013年05月09日—2013年 05月22日(10个工作日)
公示反映方式:在公示期间,有关单位或个人对该项目审批有任何意见或建议的,可通过以下方式反映:
1.联系电话: 024-25315978
2.传真:024-25300297 (请注明“规划公示”字样)
3.信件寄往“沈阳市于洪区沈大路63号 沈阳市规划和国土资源局于洪分局 建审科”收(请注明“规划公示”字样),邮编:110141。
沈阳市规划和国土资源局于洪分局
2013年05月09日
![]() | |||||||||||||||||||||||||||||||||||||
| 友情链接: |
|
|
|
|



