![]() |
|
|
|
|
|
|
|
|
|
| 通知公告: |
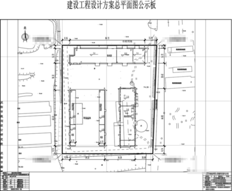
沈阳市环境卫生管理处的沈阳老虎冲生活垃圾填埋场渗沥液处理工程建设项目总平面规划方案批前公示
经沈阳市规划和国土资源局苏家屯分局规划科审核,拟批准沈阳市环境卫生管理处位于沈阳市苏家屯区陈相镇奉集堡沈阳市老虎冲垃圾处理厂内的沈阳老虎冲生活垃圾填埋场渗沥液处理工程建设项目总平面规划方案,现对该项目总平面规划方案进行公示
公示内容如下:
公示日期:2015年2月11日—2015年2月25日(10个工作日)
公示反映方式:在公示期间,有关单位或个人对该项目审批有任何意见或建议的,可通过以下方式反映:
1.联系电话: 024-89820086
2.传真:024-89820086 (请注明“规划公示”字样)
3.信件寄往“沈阳市苏家屯区雪松路42号 沈阳市规划和国土资源局 苏家屯分局规划科”收(请注明“规划公示”字样),邮编:110101
沈阳市规划和国土资源局苏家屯分局
2015年2月11日
| |||||||||||||||||||||||||||||||||||||||||||||||||||||||
| 友情链接: |
|
|
|
|


