![]() |
|
|
|
|
|
|
|
|
|
| 通知公告: |
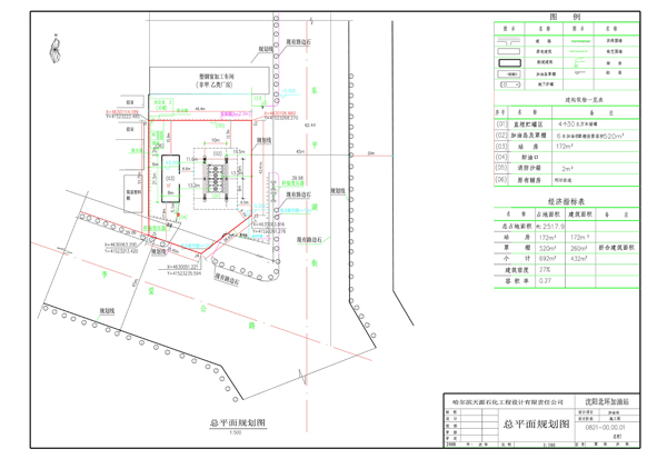
沈阳北环加油站“北环加油站”建设项目总平面规划方案批前公示
经沈阳市规划和国土资源局于洪分局建审科审核,拟批准沈阳北环加油站位于沈阳市于洪区于洪街道东平湖街的“站房、罩棚”总平面规划方案,现对该项目总平面规划方案进行公示。
公示内容如下:
公示日期:2013年10月31日——2013年 11月13日(10个工作日)
公示反映方式:在公示期间,有关单位或个人对该项目审批有任何意见或建议的,可通过以下方式反映:
1.联系电话: 024-25315978
2.传真:024-25300297 (请注明“规划公示”字样)
3. 信件寄往“沈阳市于洪区沈大路63号 沈阳市规划和国土资源局于洪分局 建审科”收(请注明“规划公示”字样),邮编:110141
沈阳市规划和国土资源局于洪分局
2013年10月31日
![]() | |||||||||||||||||||||||||||||||||||||
| 友情链接: |
|
|
|
|



