![]() |
|
|
|
|
|
|
|
|
|
| 通知公告: |
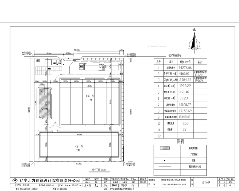
沈阳日丰成控电气制造有限公司位于于洪区沙岭街道银岭路21号 的综合楼(三期)工程批前公示
经沈阳市规划和国土资源局于洪分局建审科审核,拟批准沈阳日丰成控电气制造有限公司位于于洪区沙岭街道银岭路21号的综合楼(三期)规划设计方案,现对该项目总平面方案进行公示并征求意见。
公示内容如下: 1、该图仅为示意图,以最终审批为准。 2、公示及收集意见日期: 3、利益相关人可在公示有效期内通过以下途径咨询或提出意见: ①咨询电话:024-25315978; ②信函请邮寄至: 沈阳市于洪区沈大路63号 沈阳市规划和国土资源局于洪分局 建审科”收(请注明“规划公示”字样),邮编:110141(以邮戳日期为准); 4、反馈意见请注明联系人真实姓名、电话、地址等信息;如因信息不完整或不真实导致无法核对相关情况的,视为无效意见。 5、本方案涉及的利益相关人依法享有听证权,如需听证请在公示期内提出申请;在接到申请并审核通过后,我局将在15个工作日内组织听证会。 沈阳市规划和国土资源局于洪分局
| ||||||||||||||||||||||||||||||||||||||
| 友情链接: |
|
|
|
|


