![]() |
|
|
|
|
|
|
|
|
|
| 通知公告: |
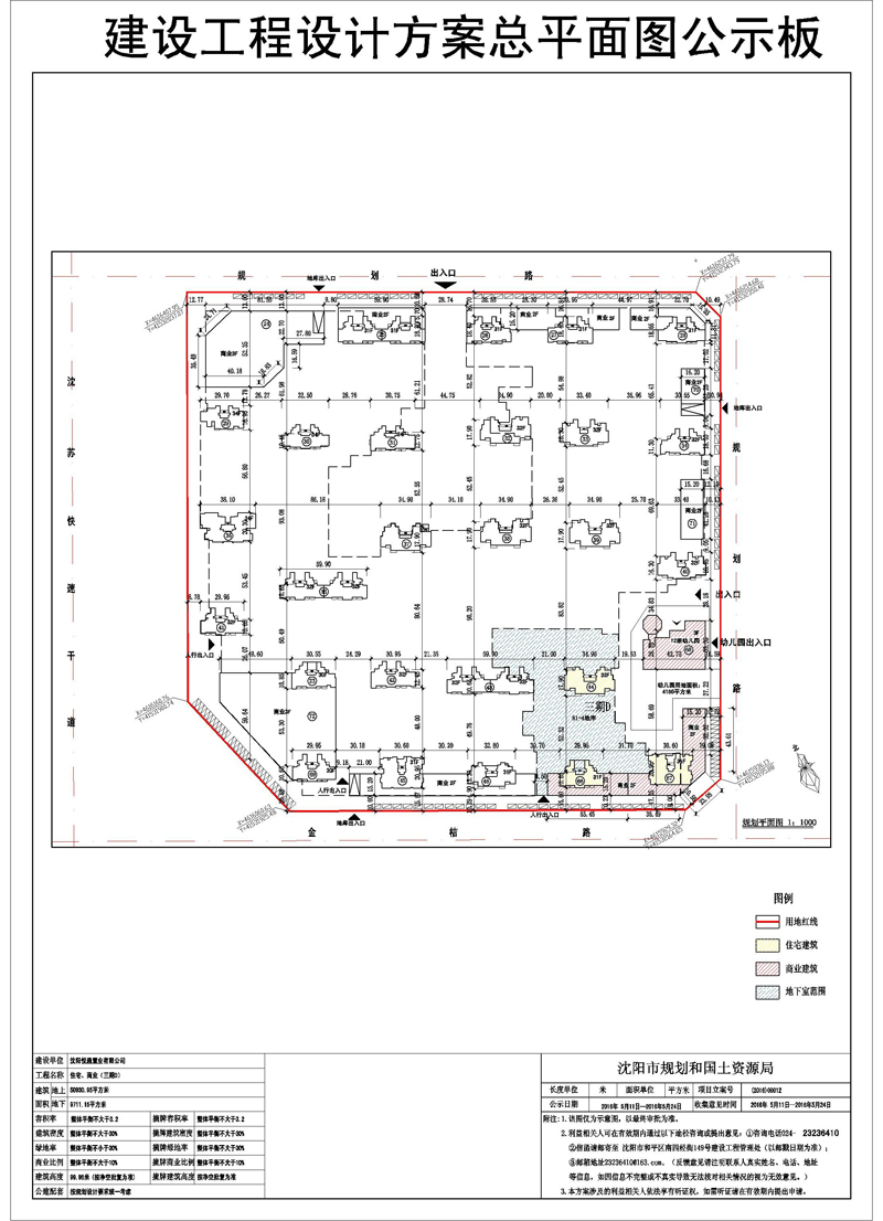
沈阳悦通置业有限公司的恒大名都住宅、商业(三期D)建设项目总平面规划方案批前公示
经沈阳市规划和国土资源局苏家屯分局规划科审核,拟批准沈阳悦通置业有限公司位于沈阳市苏家屯区沈苏快速干道东的住宅、商业(三期D)(恒大名都)建设项目总平面规划方案,现对该项目总平面规划方案进行公示
公示内容如下:
公示日期:2016年 5月11日—2013年5月24日(10个工作日)
公示反映方式:在公示期间,有关单位或个人对该项目审批有任何意见或建议的,可通过以下方式反映:
1.联系电话: 024-89820086
2.传真:024-89820086 (请注明“规划公示”字样)
3.信件寄往“沈阳市苏家屯区雪松路42号 沈阳市规划和国土资源局 苏家屯分局规划科”收(请注明“规划公示”字样),邮编:110101
沈阳市规划和国土资源局苏家屯分局
2016年5月11日
| |||||||||||||||||||||||||||||||||||||||||||||||||||||||
| 友情链接: |
|
|
|
|


