![]() |
|
|
|
|
|
|
|
|
|
| 通知公告: |
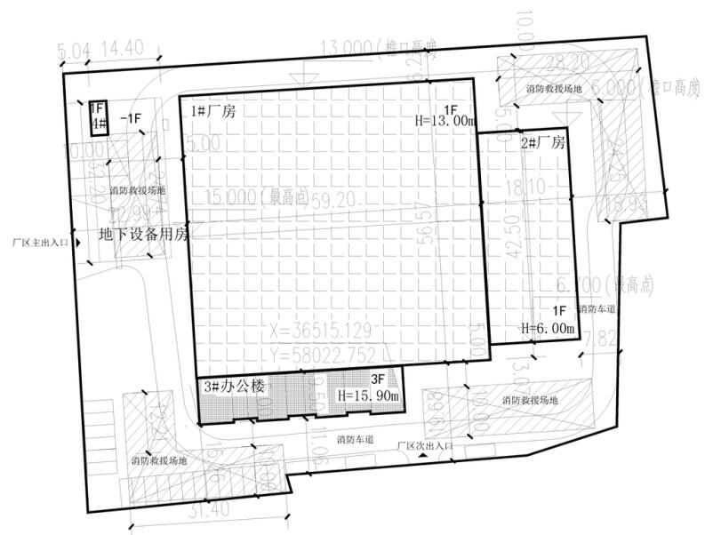
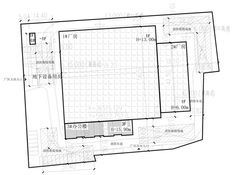
沈阳国盛防腐保温有限公司位于浑南区高坎街道的工业项目规划方案批后公示
经沈阳市规划和国土资源局沈抚新城分局审核,拟批准沈阳国盛防腐保温有限公司位于浑南区高坎街道的工业项目《建设工程规划许可证》总平面规划方案,现对该项目总平面规划方案进行公示。
公示内容如下:
公示日期:2018年3月27日——2018年4月10日(10个工作日)
公示反映方式:在公示期间,有关单位或个人对该项目审批有任何意见或建议的,可通过以下方式反映:
1. 联系电话: 024-88019153
传真:024-88050826(请注明“规划公示”字样)
2. 信件寄往“沈阳棋盘山开发区泗水街57号4楼规划分局规划科”
收(请注明“规划公示”字样),邮编:110163
沈阳市规划和国土资源局沈抚新城分局
2018年3月27日
![]() | |||||||||||||||||||||||||||||||||||||||||
| 友情链接: |
|
|
|
|



