![]() |
|
|
|
|
|
|
|
|
|
| 通知公告: |
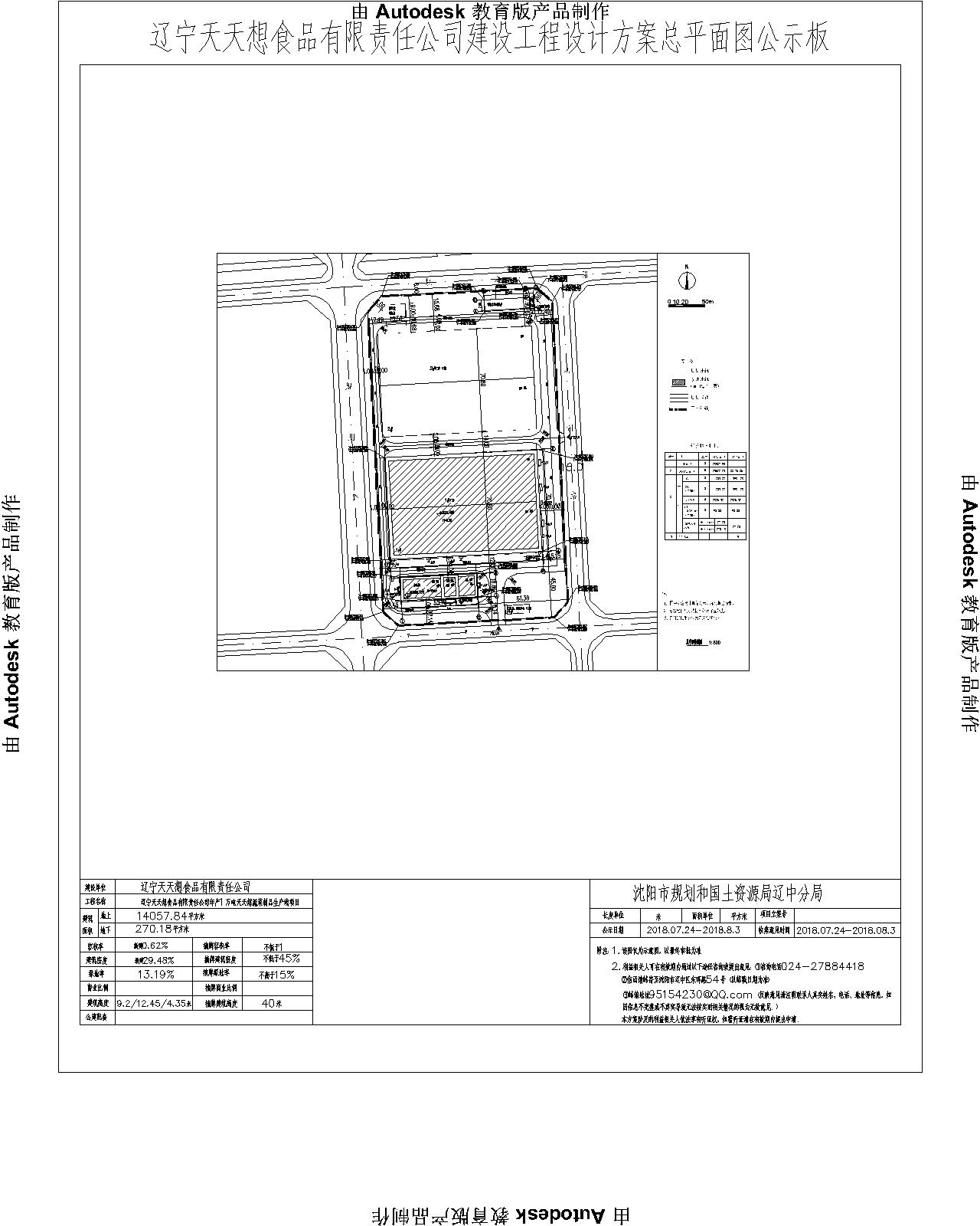
辽宁天天想食品有限责任公司“年产1万吨天天想蔬菜制品生产线项目”《建设工程规划许可证》批前公示
辽宁天天想食品有限责任公司“年产1万吨天天想蔬菜制品生产线项目”《建设工程规划许可证》批前公示 经沈阳市规划和国土资源局辽中分局规划科审核,拟批准辽宁天天想食品有限责任公司位于沈阳市辽中区满都户镇满西村。辽宁天天想食品有限责任公司“年产1万吨天天想蔬菜制品生产线项目”建设项目总平面规划方案,现对该项目总平面规划方案进行公示 公示内容如下: 1、该图仅为示意图,以最终审批为准。 2、公示日期:2018年07月24日—2018年08月03日(10个工作日) 3、利益相关人可在公示有效期内通过以下途径咨询或提出意见: ①联系电话: 024-27884418 ②邮箱地址:95154230@qq.com ③信件寄往“沈阳市辽中区滨水新城滨水路28号 沈阳市规划和国土资源局辽中分局规划窗口”收(请注明“规划公示”字样),邮编:110200 4、反馈意见请注明联系人真实姓名、电话、地址等信息;如因信息不完整或不真实导致无法核对相关情况的,视为无效意见。 5、本方案涉及的利益相关人依法享有听证权,如需听证请在公示期内提出申请;在接到申请并审核通过后,我局将在15个工作日内组织听证会。 沈阳市规划和国土资源局辽中分局 2018年7月24日
![]() | |||||||||||||||||||||||||||||||||||||||||||||||||||||||
| 友情链接: |
|
|
|
|



