![]() |
|
|
|
|
|
|
|
|
|
| 通知公告: |
沈阳燃气有限公司(金辉·中央云著项目)住宅燃气工程方案规划许可批前公示
沈阳燃气有限公司(金辉·中央云著项目)住宅燃气工程方案规划许可批前公示
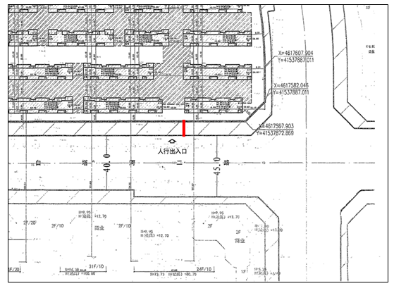
沈阳燃气有限公司建设的浑南区白塔河二路(金辉·中央云著)燃气管线敷设规划用地性质为市政用地,长度为5米。建设单位现已委托设计单位按照相关技术标准和规范完成建设工程规划设计方案,现予以公示并公开征求意见。 1、公示及收集意见日期:2020年5月28日——2020年6月5日(7个工作日) 2、利害关系人可在公示有效期内通过以下途径咨询或提出意见: ①咨询电话:审批部门:沈阳市自然资源局浑南分局办公室,024-24222956; 建设单位:沈阳燃气有限公司,024-25836477; 设计单位:沈阳城市燃气规划设计研究院有限公司,024-25836478; ②信函请邮寄至;沈阳市浑南新区世纪路15号沈阳市自然资源局浑南分局办公室(以邮戳日期为准) 邮编:110179。 ③电子邮箱:339485952@qq.com。 3、反馈意见请注明联系人真实姓名、电话、地址等信息;如因信息不完整或不真实导致无法核对相关情况的,视为无效意见。 4、本方案涉及的利害关系人依法享有听证权。
沈阳市自然资源局浑南分局 2020年5月28日
|
| 友情链接: |
|
|
|
|



