![]() |
|
|
|
|
|
|
|
|
|
| 通知公告: |
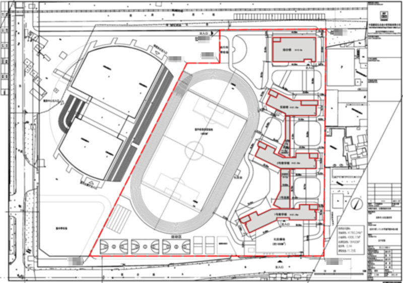
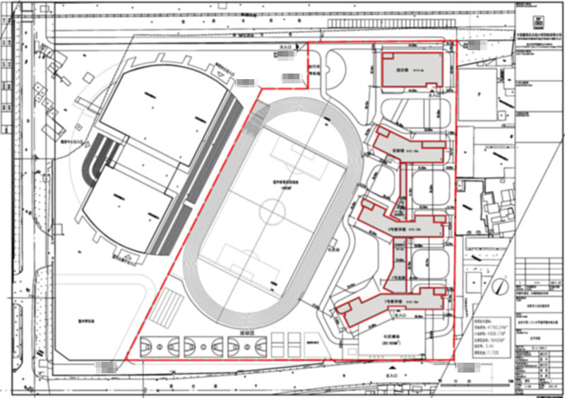
沈阳市大东区教育局的“二十八中学教学楼和综合楼”建设项目总平面规划方案批前公示
经沈阳市规划和国土资源局建设工程管理处审核,拟批准沈阳市大东区教育局位于大东区东建街73号的沈阳市第二十八中学教学楼和综合楼总平面规划方案,现对该项目总平面规划方案进行公示。
公示内容如下:
公示日期:2011年9月12日——2011年9月23日(10个工作日)
公示反映方式:在公示期间,有关单位或个人对该项目审批有任何意见或建议的,可通过以下方式反映:
1.联系电话:024-83961873
2.传真:024-83963817 (请注明“规划公示”字样)
3.信件寄往“沈阳市和平区南四经街149号 沈阳市规划和国土资源局 建设工程管理处”收(请注明“规划公示”字样),邮编:110003
沈阳市规划和国土资源局
2011年 9月12日
![]() | |||||||||||||||||||||||||||||||||||||||||||||
| 友情链接: |
|
|
|
|



