![]() |
|
|
|
|
|
|
|
|
|
| 通知公告: |
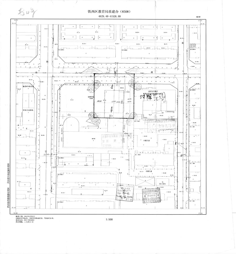
沈阳市铁西区教育局春晖学校综合楼建设工程规划许可证批前公示
经沈阳市规划和国土资源局铁西分局规划科审核,拟批准沈阳市铁西区教育局位于富工四街十一号春晖学校综合楼楼项目规划方案,现对该项目总平面规划方案进行公示并征求意见。 公示内容如下: 1、该图仅为示意图,以最终审批为准。 2、公示及收集意见日期:2014年11月3日——2014年11月14日(10个工作日) 3、利益相关人可在公示有效期内通过以下途径咨询或提出意见: ①咨询电话:024-25877234; ②信函请邮寄至: 沈阳市铁西区北一西路52号A座608沈阳市规划和国土资源局铁西分局规划科(以邮戳日期为准); 4、反馈意见请注明联系人真实姓名、电话、地址等信息;如因信息不完整或不真实导致无法核对相关情况的,视为无效意见。 5、本方案涉及的利益相关人依法享有听证权,如需听证请在公示期内提出申请;在接到申请并审核后,我局将在15个工作日内组织听证会。 建设单位 沈阳市铁西区教育局 工程名称 春晖学校综合楼 建筑 面积 地上 1200平方米 地下 0平方米 容积率 0.76 建筑密度 37% 绿地率 商业比例 建筑高度 20.01米
| |||||||||||||||||||||||||||||||||
| 友情链接: |
|
|
|
|


