![]() |
|
|
|
|
|
|
|
|
|
| 通知公告: |
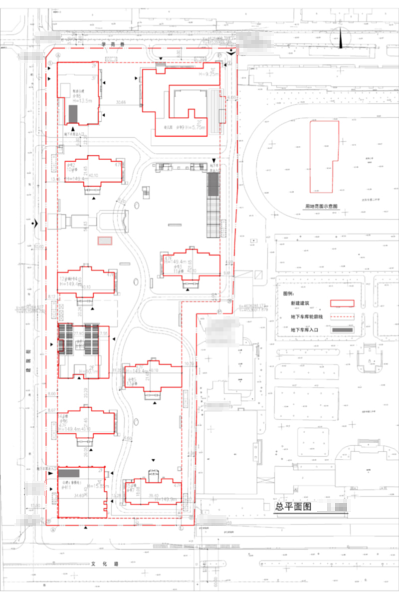
嘉里(沈阳)房地产开发有限公司位于沈河区文化路北的中国沈阳嘉里中心-第一期发展C地块规划方案批前公示
[总平面规划方案] 嘉里(沈阳)房地产开发有限公司位于沈河区文化路北的中国沈阳嘉里中心-第一期发展C地块规划方案批前公示
经沈阳市规划和国土资源局建设工程管理处审核,拟批准嘉里(沈阳)房地产开发有限公司位于沈河区文化路北的中国沈阳嘉里中心-第一期发展C地块总平面规划方案,现对该项目总平面规划方案进行公示。
公示内容如下:
公示日期:2012年1月16日——2012年2月3 日(10个工作日)
公示反映方式:在公示期间,有关单位或个人对该项目审批有任何意见或建议的,可通过以下方式反映:
1. 联系电话: 024-28513096,024-23236914
2. 传真:024-83961709 (请注明“规划公示”字样)
3. 信件寄往“沈阳市和平区南四经街149号 沈阳市规划和国土资源局 建设工程管理处”收(请注明“规划公示”字样),邮编:110003
沈阳市规划和国土资源局
2012年 1月 16日
备注:1、容积率含地上建筑面积和地下商业面积。
2、容积率中商业面积计算。层高在4.8~6米之间(含4.8米和6米)按1.5倍建筑面积计容,层高大于6米,按2倍建筑面积计容。
3、住宅建筑高度为:室外地面至四十七层屋面主要女儿墙高度。
4、配套公建、公建(售楼处)建筑高度为:室外地面至三层结构屋面高度。
5、幼儿园建筑高度为:幼儿园二层室外地面至三层屋面女儿墙高度。
6、会所建筑高度为:室外地面至二层结构屋面高度。
![]() | |||||||||||||||||||||||||||||||||||||||||
| 友情链接: |
|
|
|
|



