![]() |
|
|
|
|
|
|
|
|
|
| 通知公告: |
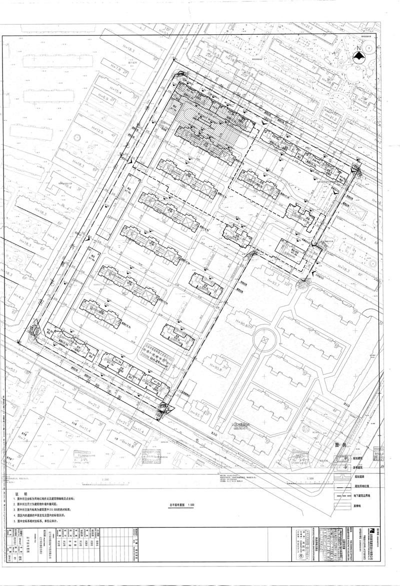
辽宁其仕郡房地产开发有限公司保工街北四路住宅项目建设工程规划许可证批前公示
经沈阳市规划和国土资源局铁西分局规划科审核,拟批准辽宁其仕郡房地产开发有限公司位于北四中路28号的住宅项目规划方案,现对该项目总平面规划方案进行公示并征求意见。 公示内容如下: 1、该图仅为示意图,以最终审批为准。 2、公示及收集意见日期:2014年12月17日——2014年12月31日(10个工作日) 3、利益相关人可在公示有效期内通过以下途径咨询或提出意见: ①咨询电话:024-25877234; ②信函请邮寄至: 沈阳市铁西区北一西路52号A座608沈阳市规划和国土资源局铁西分局规划科(以邮戳日期为准); 4、反馈意见请注明联系人真实姓名、电话、地址等信息;如因信息不完整或不真实导致无法核对相关情况的,视为无效意见。 5、本方案涉及的利益相关人依法享有听证权,如需听证请在公示期内提出申请;在接到申请并审核后,我局将在15个工作日内组织听证会。
| |||||||||||||||||||||||||||||||||||||||||||||||||
| 友情链接: |
|
|
|
|



