![]() |
|
|
|
|
|
|
|
|
|
| 通知公告: |
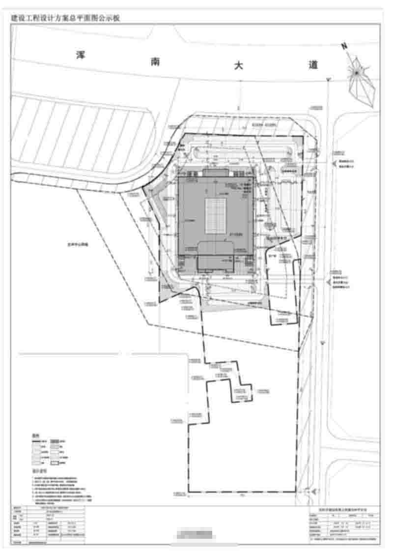
沈阳市和平区文体广电新闻出版局长白岛全民健身中心项目建设工程许可证批前公示
经沈阳市规划和国土资源局和平分局规划科审核,拟批准沈阳市和平区文体广电新闻出版局位于满融地区的长白岛全民健身中心项目规划方案,现对该项目总平面规划方案进行公示。 公示内容如下: 1、该图仅为示意图,以最终审批为准。 2、公示及收集意见日期:2015年9月30日——2015年10月20日(10个工作日) 3、利益相关人可在公示有效期内通过以下途径咨询或提出意见: ①咨询电话:024-23251742; ②信函请邮寄至:沈阳市和平区嘉兴街7号沈阳市规划和国土资源局和平分局规划科(以邮戳日期为准) 邮编:110000; 4、反馈意见请注明联系人真实姓名、电话、地址等信息;如因信息不完整或不真实导致无法核对相关情况的,视为无效意见。
沈阳市规划和国土资源局和平分局 2015年9月30日
| |||||||||||||||||||||||||||||||||||||||||||||
| 友情链接: |
|
|
|
|



