![]() |
|
|
|
|
|
|
|
|
|
| 通知公告: |
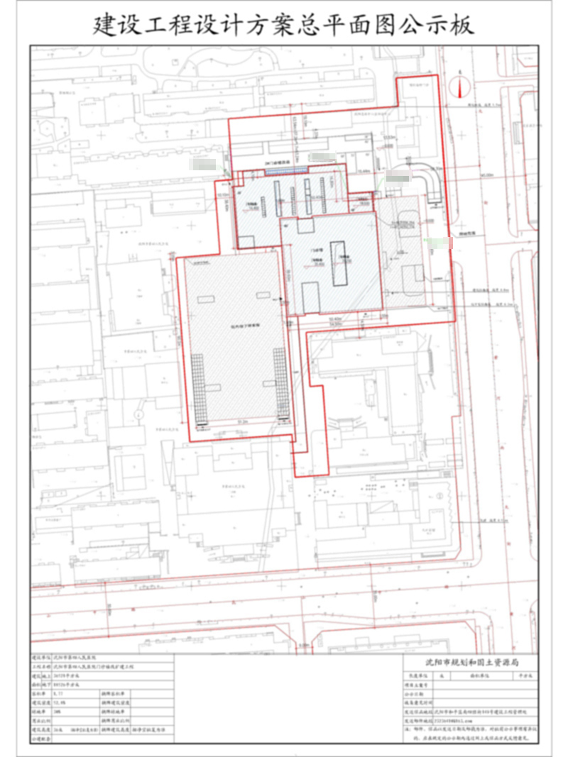
沈阳市第四人民医院位于皇姑区黄河北大街西侧的沈阳市第四人民医院门诊楼改扩建工程批前公示
[总平面规划方案]沈阳市第四人民医院位于皇姑区黄河北大街西侧的沈阳市第四人民医院门诊楼改扩建工程批前公示
经沈阳市规划和国土资源局建设工程管理处审核,拟批准沈阳市第四人民医院(单位)位于皇姑区黄河北大街西侧(地址)的沈阳市第四人民医院门诊楼改扩建工程规划方案,现对该项目总平面规划方案进行公示。
公示内容如下:
公示日期:2012年 6月4日——2012年 6月14日(10个工作日)
公示反映方式:在公示期间,有关单位或个人对该项目审批有任何意见或建议的,可通过以下方式反映:
1. 联系电话: 024-28513096,024-23236914
2. 传真:024-83963817 (请注明“规划公示”字样)
3. 信件寄往“沈阳市和平区南四经街149号 沈阳市规划和国土资源局 建设工程管理处”收(请注明“规划公示”字样),邮编:110003
沈阳市规划和国土资源局
2012年 6月4日
![]() | |||||||||||||||||||||||||||||||||||||||||||||
| 友情链接: |
|
|
|
|



