![]() |
|
|
|
|
|
|
|
|
|
| 通知公告: |
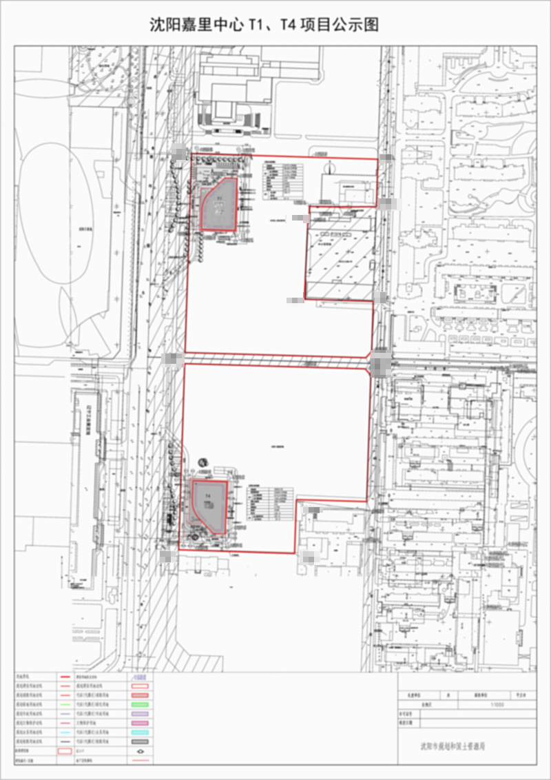
嘉里(沈阳)房地产开发有限公司 位于沈河区青年大街东的沈阳嘉里中心
[总平面规划方案]嘉里(沈阳)房地产开发有限公司 位于沈河区青年大街东的沈阳嘉里中心
A2地块一期T1办公楼,B1地块一期T4公寓楼规划方案批前公示
经沈阳市规划和国土资源局建设工程管理处审核,拟批准嘉里(沈阳)房地产开发有限公司位于沈河区青年大街东的沈阳嘉里中心A2地块T1办公楼,B1地块一期T4公寓楼平面规划方案,现对该项目一期总平面规划方案进行公示。
公示内容如下:
公示日期:2012年8月28日——2012年9月10日(10个工作日)
公示反映方式:在公示期间,有关单位或个人对该项目审批有任何意见或建议的,可通过以下方式反映:
1. 联系电话: 024-28513096,024-23236914
2. 传真:024-83963817 (请注明“规划公示”字样)
3. 信件寄往“沈阳市和平区南四经街149号 沈阳市规划和国土资源局 建设工程管理处”收(请注明“规划公示”字样),邮编:110003
沈阳市规划和国土资源局
2012年8月 27日
![]() | |||||||||||||||||||||||||||||||||||||||||||||
| 友情链接: |
|
|
|
|



