![]() |
|
|
|
|
|
|
|
|
|
| 通知公告: |
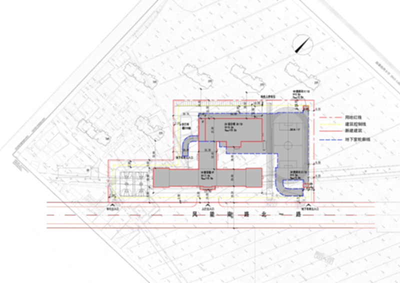
沈阳市浑南区教育局位于浑南区的浑南区第十二小学建设工程项目
经沈阳市规划和国土资源局浑南分局规划科审核,拟批准沈阳市浑南区教育局位于浑南区的浑南区第十二小学建设工程项目 规划方案,现对该项目总平面规划方案进行公示。 公示内容如下: 公示日期:2016年4月1日——2016年4月15日(10个工作日) 公示反映方式:在公示期间,有关单位或个人对该项目审批有任何意见或建议的,可通过以下方式反映: 1. 联系电话: 024-24820973 2. 传真:024-23786028 (请注明“规划公示”字样) 信件寄往“沈阳市浑南区世纪路15号 沈阳市规划和国土资源局浑南分局 办公室”收(请注明“规划公示”字样),邮编:110179 沈阳市规划和国土资源局浑南分局 2016年4月1日
| |||||||||||||||||||||||||||||||||||||||||||||
| 友情链接: |
|
|
|
|



