![]() |
|
|
|
|
|
|
|
|
|
| 通知公告: |
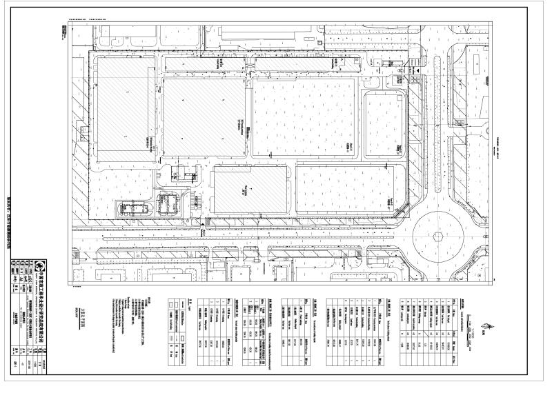
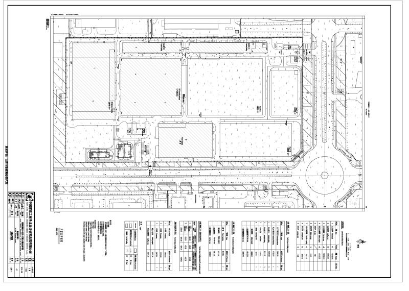
阿诺德紧固件(沈阳)有限公司阿诺德紧固件(沈阳)有限公司新建仓库项目工程批前公示
经沈阳市规划和国土资源局大东分局审核,拟批阿诺德紧固件(沈阳)有限公司位于沈阳市大东区建设路119号的阿诺德紧固件(沈阳)有限公司新建仓库项目设计方案,现对该项目总平面方案进行公示并征求意见。
公示内容如下:
1、该图仅为示意图,以最终审批为准。
2、公示及收集意见日期:2018年06月22日——2018年07月05日(10个工作日)
3、利益相关人可在公示有效期内通过以下途径咨询或提出意见:
①咨询电话:024-62199948;
②信函请邮寄至: 沈阳市大东区滂江街73号规划科;
4、反馈意见请注明联系人真实姓名、电话、地址等信息;如因信息不完整或不真实导致无法核对相关情况的,视为无效意见。
5、本方案涉及的利益相关人依法享有听证权,如需听证请在公示期内提出申请;在接到申请并审核后,我局将在15个工作日内组织听证会。
沈阳市规划和国土资源局大东分局
2018年06月 22 日
![]() | |||||||||||||||||||||||||||||||||||||||||||||
| 友情链接: |
|
|
|
|



