![]() |
|
|
|
|
|
|
|
|
|
| 通知公告: |
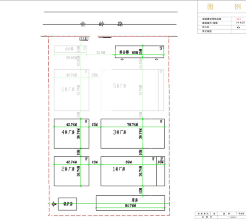
沈阳市友日久实业有限公司“厂房、综合楼”建设项目
沈阳市友日久实业有限公司“厂房、综合楼”建设项目
规划方案公示
经沈阳市规划和国土资源局于洪分局审核,拟批准沈阳市友日久实业有限公司位于于洪区金岭路35号地块的厂房、综合楼总平面规划方案,现对该项目总平面规划方案进行公示。
公示内容如下:
公示日期:2016年3月14日——2016年3月25 日(10个工作日)
公示反映方式:在公示期间,有关单位或个人对该项目审批有任何意见或建议的,可通过以下方式反映:
1. 联系电话: 024-31013913
2. 传真:024-25205316 (请注明“规划公示”字样)
3. 信件寄至:沈阳市于洪区沈大路63号 沈阳市规划和国土资源局于洪分局建审科”收(请注明“规划公示”字样),邮编:110141
4. 邮箱地址:188720504@qq.com
5. 反馈意见请注明真实姓名、电话、地址等信息:如因信息不完整或不真实导致无法核对相关情况的,视为无效意见。
6. 本方案涉及的利益相关人依法享有听证权,如需听证请在公示期内提出申请:在接到申请并审核通过后,我局将在15个工作日内组织听证会。
沈阳市规划和国土资源局于洪分局
2016年3月14日
![]() | |||||||||||||||||||||||||||||||||||||||||||||
| 友情链接: |
|
|
|
|



