![]() |
|
|
|
|
|
|
|
|
|
| 通知公告: |
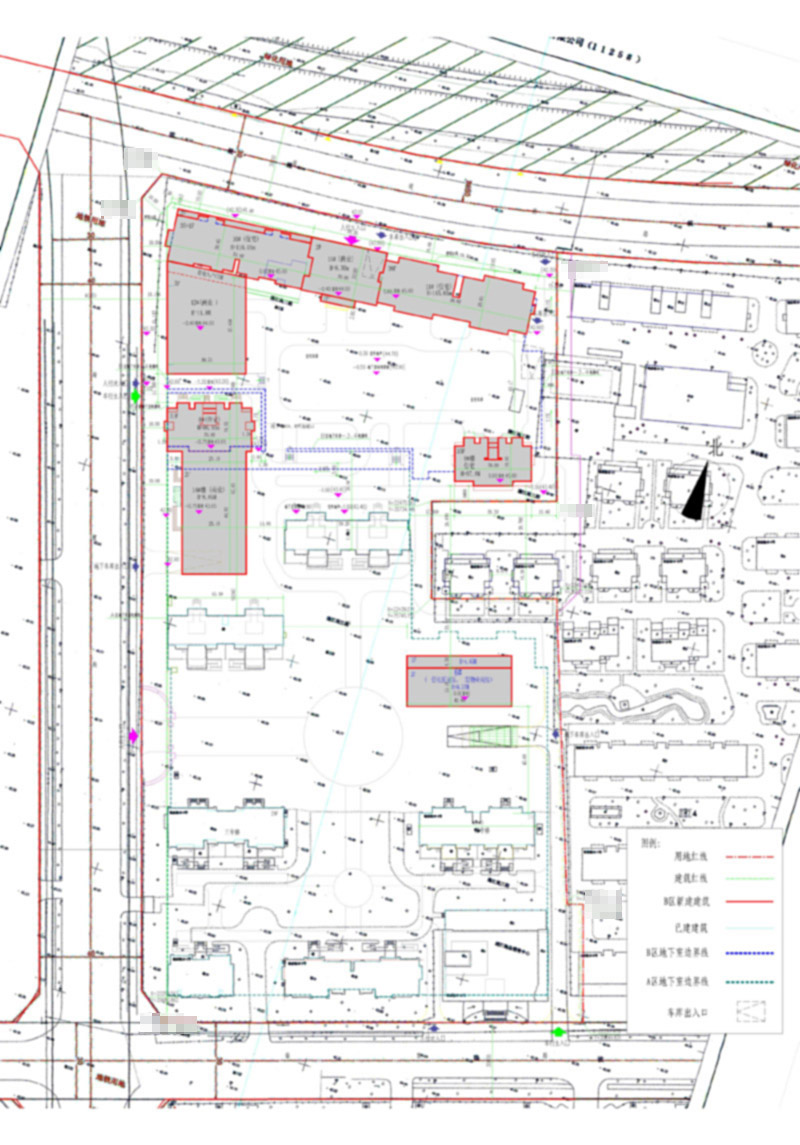
沈阳新洲和田房地产开发有限公司位于沈阳市浑南新区C2地块的“浦江苑三期(B区)”规划方案批前公示
沈阳新洲和田房地产开发有限公司位于沈阳市浑南新区C2地块的“浦江苑三期(B区)”规划方案批前公示
经沈阳市规划和国土资源局东陵分局规划科审核,拟批准沈阳新洲和田房地产开发有限公司位于沈阳市浑南新区C2地块的“浦江苑三期(B区)”项目规划方案,现对该项目总平面规划方案进行公示。
公示内容如下:
公示日期:2013年2月11日——2013年2月22日(10个工作日)
公示反映方式:在公示期间,有关单位或个人对该项目审批有任何意见或建议的,可通过以下方式反映:
1. 联系电话: 024-83773728,024-83773731
2. 传真:024-83773726 (请注明“规划公示”字样)
3. 信件寄往“沈阳市浑南新区世纪路15号 沈阳市规划和国土资源局东陵分局 办公室”收(请注明“规划公示”字样),邮编:110179
沈阳市规划和国土资源局
2013年 2月7日
![]() | |||||||||||||||||||||||||||||||||||||||||||||
| 友情链接: |
|
|
|
|



