![]() |
|
|
|
|
|
|
|
|
|
| 通知公告: |
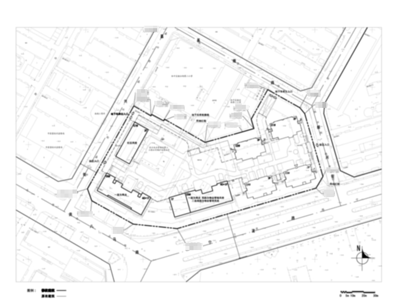
鑫港置业(沈阳)有限公司位于和平区宁波路北的新兴花园调整方案批前公示
[总平面规划方案]鑫港置业(沈阳)有限公司位于和平区宁波路北的新兴花园调整方案批前公示
经沈阳市规划和国土资源局建设工程管理处审核,拟批准鑫港置业(沈阳)有限公司位于和平区宁波路北的新兴花园调整方案,调整内容为: C5#、C6#楼首层社区用房改为网点,C7#楼由网点改为社区用房,总平面图建筑轮廓均不变,详见总图。现对该项目总平面方案进行公示并征求意见。
公示内容如下:
1、该图仅为示意图,以最终审批为准。
2、公示及收集意见日期:2016年6月15日——2016年6月28日(10个工作日)
3、利益相关人可在公示期内通过以下途径咨询或提出意见:
①咨询电话:024-83961873;
②信函请邮寄至: 沈阳市和平区南四经街149号建设工程管理处(以邮戳日期为准);
4、反馈意见请注明联系人真实姓名、电话、地址等信息;如因信息不完整或不真实导致无法核对相关情况的,视为无效意见。
沈阳市规划和国土资源局
2016年6月15日
![]() | |||||||||||||||||||||||||||||||||||||||||||||
| 友情链接: |
|
|
|
|



