![]() |
|
|
|
|
|
|
|
|
|
| 通知公告: |
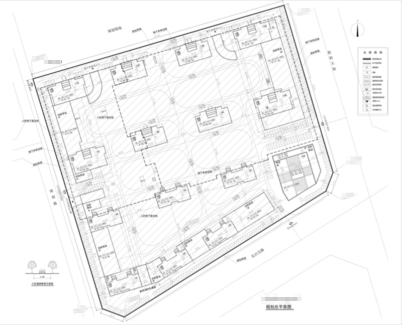
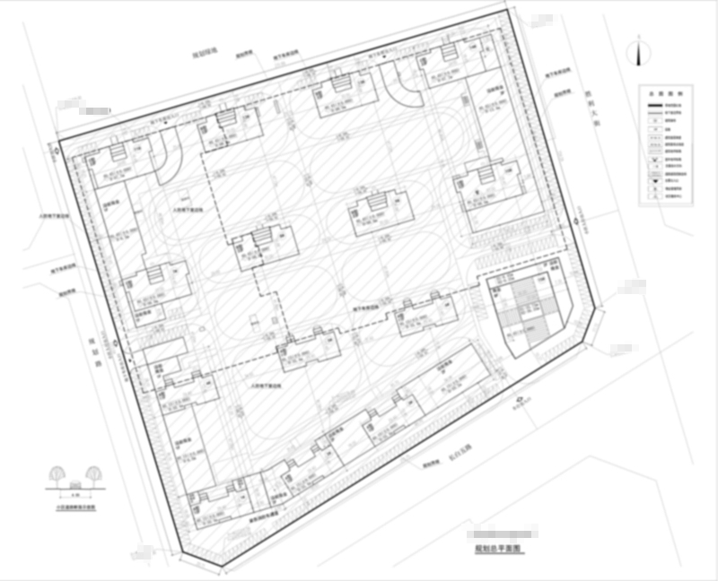
沈阳越星房地产开发有限公司星汇蓝海项目15#楼建设工程许可证批前公示
经沈阳市规划和国土资源局和平分局规划科审核,拟批准沈阳越星房地产开发有限公司位于长白地区的星汇蓝海项目15#楼规划方案调整,现对该项目总平面规划调整方案进行公示。
公示内容如下: 1、该图仅为示意图,以最终审批为准。 2、公示及收集意见日期:2016年6月6日——2016年6月20日(10个工作日) 3、利益相关人可在公示有效期内通过以下途径咨询或提出意见: ①咨询电话:024-23251742; ②信函请邮寄至:沈阳市和平区嘉兴街7号沈阳市规划和国土资源局和平分局规划科(以邮戳日期为准) 邮编:110000; 4、反馈意见请注明联系人真实姓名、电话、地址等信息;如因信息不完整或不真实导致无法核对相关情况的,视为无效意见。
![]() | |||||||||||||||||||||||||||||||||||||||||||||
| 友情链接: |
|
|
|
|



