![]() |
|
|
|
|
|
|
|
|
|
| 通知公告: |
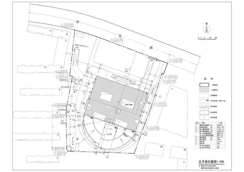
沈阳市第一人民医院位于大东区清泉路67号的门诊楼位于规划方案批前公示
[总平面规划方案]沈阳市第一人民医院位于大东区清泉路67号的门诊楼位于规划方案批前公示
经沈阳市规划和国土资源局建设工程管理处审核,拟批沈阳市第一人民医院位于大东区清泉路67号的门诊楼增加裙房部分地下2层的总平面规划方案,现对该项目进行公示。共增加地下建筑面积6777平方米。
公示内容如下:
公示日期:2013年3月14日——2013年3月27日(10个工作日)
公示反映方式:在公示期间,有关单位或个人对该项目审批有任何意见或建议的,可通过以下方式反映:
1. 联系电话:024-83963670
2. 传真:024-83963817(请注明“规划公示”字样)
3. 信件寄往“沈阳市和平区南四经街149号 沈阳市规划和国土资源局 建设工程管理处”收(请注明“规划公示”字样),邮编:110003
沈阳市规划和国土资源局
2013年3月13日
![]() |
| 友情链接: |
|
|
|
|



