![]() |
|
|
|
|
|
|
|
|
|
| 通知公告: |
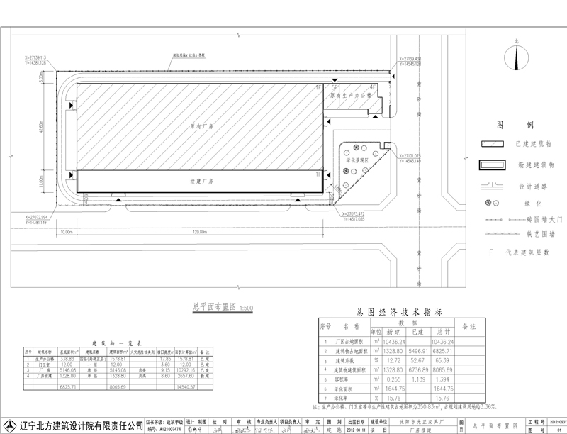
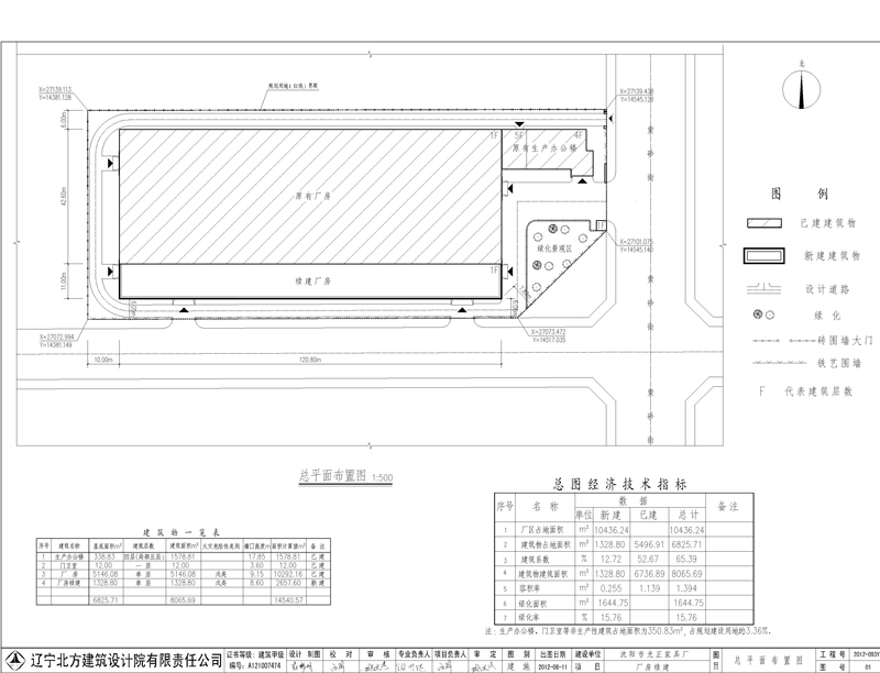
沈阳市光正家具厂“扩建厂房项目”建设项目总平面规划方案批前公示
经沈阳市规划和国土资源局于洪分局建审科审核,拟批准沈阳市光正家具厂位于沈阳市于洪区沙岭街道紫沙街18-1号的“扩建厂房项目”总平面规划方案,现对该项目总平面规划方案进行公示。
公示内容如下:
公示日期:2013年03月19日—2013年 04月01日(10个工作日)
公示反映方式:在公示期间,有关单位或个人对该项目审批有任何意见或建议的,可通过以下方式反映:
1. 联系电话: 024-25315978
2. 传真:024-25300297 (请注明“规划公示”字样)
3. 信件寄往“沈阳市于洪区沈大路63号 沈阳市规划和国土资源局于洪分局建审科”收(请注明“规划公示”字样),邮编:110141。
沈阳市规划和国土资源局于洪分局
2013年03月19日
![]() | |||||||||||||||||||||||||||||
| 友情链接: |
|
|
|
|



