![]() |
|
|
|
|
|
|
|
|
|
| 通知公告: |
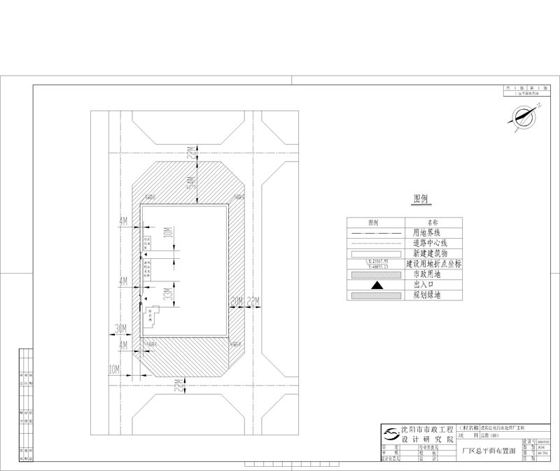
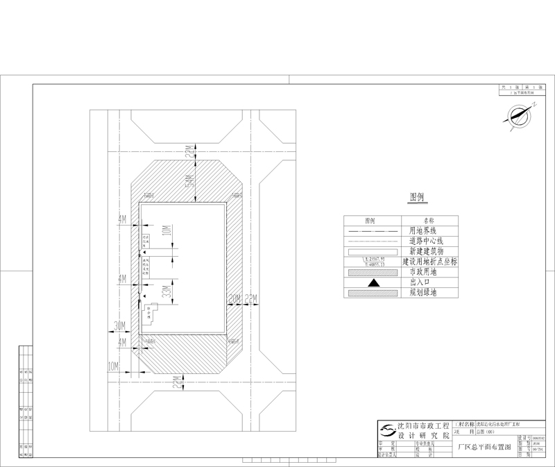
沈阳振兴环保工程有限公司“造化污水处理厂(一期)”建设项目总平面规划方案批前公示
经沈阳市规划和国土资源局于洪分局建审科审核,拟批准沈阳振兴环保工程有限公司位于沈阳市于洪区造化街道闸上村的“造化污水处理厂(一期)”总平面规划方案,现对该项目总平面规划方案进行公示。
公示内容如下:
公示日期:2013年03月19日—2013年 04月01日(10个工作日)
公示反映方式:在公示期间,有关单位或个人对该项目审批有任何意见或建议的,可通过以下方式反映:
1. 联系电话: 024-25315978
2. 传真:024-25300297 (请注明“规划公示”字样)
3. 信件寄往“沈阳市于洪区沈大路63号 沈阳市规划和国土资源局于洪分局建审科”收(请注明“规划公示”字样),邮编:110141。
沈阳市规划和国土资源局于洪分局
2013年03月19日
![]() | |||||||||||||||||||||||||||||
| 友情链接: |
|
|
|
|



