![]() |
|
|
|
|
|
|
|
|
|
| 通知公告: |
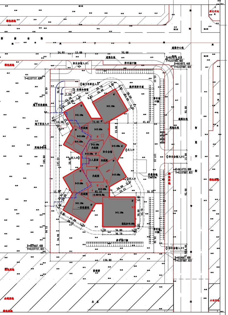
沈阳市妇女会馆位于浑南区智慧四街西侧莫子山路南侧的沈阳市妇女会馆迁建工程项目规划方案批前公示
经沈阳市规划和国土资源局浑南分局规划科审核,拟批准沈阳市妇女会馆位于浑南区智慧四街西侧莫子山路南侧的迁建工程项目规划方案,现对该项目总平面规划方案进行公示。
公示内容如下:
1、该图仅为示意图,以最终审批为准。
2、公示及收集意见日期:2016年 9月19日——2016年9月30日(10个工作日)
3、利益相关人可在公示有效期内通过以下途径咨询或提出意见:
①咨询电话:024-24820973;
②信函请邮寄至:沈阳市浑南新区世纪路15号沈阳市规划和国土资源局浑南分局规划科(以邮戳日期为准) 邮编:110179;
4、反馈意见请注明联系人真实姓名、电话、地址等信息;如因信息不完整或不真实导致无法核对相关情况的,视为无效意见。
沈阳市规划和国土资源局浑南分局
2016年 9月19日
注:
![]() | |||||||||||||||||||||||||||||||||||||||||||||
| 友情链接: |
|
|
|
|



