![]() |
|
|
|
|
|
|
|
|
|
| 通知公告: |
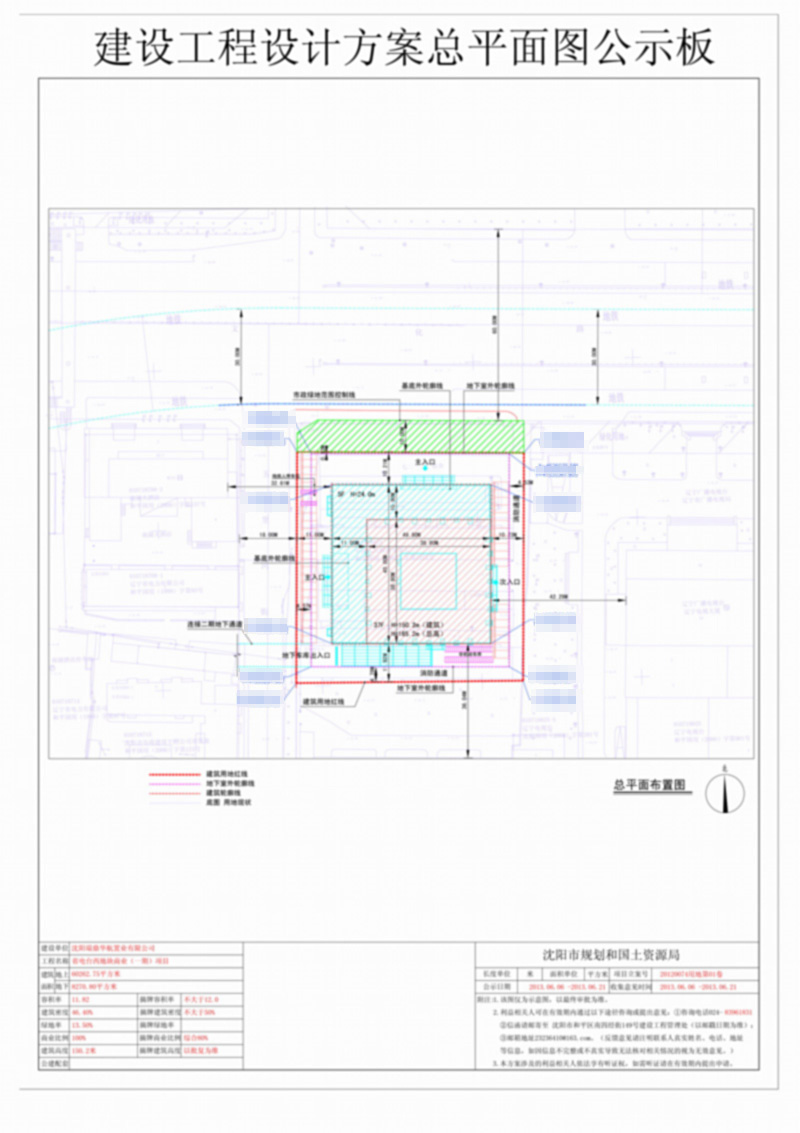
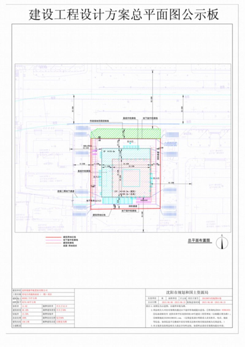
沈阳瑞鼎华航置业有限公司位于和平区五里河街文化路交汇处的省电台西地块商业(一期)项目规划方案批前公示
[总平面规划方案]沈阳瑞鼎华航置业有限公司位于和平区五里河街文化路交汇处的省电台西地块商业(一期)项目规划方案批前公示
经沈阳市规划和国土资源局建设工程管理处审核,拟批准沈阳瑞鼎华航置业有限公司位于和平区五里河街文化路交汇处的省电台西地块商业(一期)项目总平面规划方案,现对该项目总平面规划方案进行公示并征求意见。
公示内容如下:
1、该图仅为示意图,以最终审批为准。
2、公示及收集意见日期:2013年06月06日——2013年06月21日(10个工作日)
3、利益相关人可在公示有效期内通过以下途径咨询或提出意见:
①咨询电话:024-83961831;
②信函请邮寄至: 沈阳市和平区南四经街149号建设工程管理处(以邮戳日期为准);
4、反馈意见请注明联系人真实姓名、电话、地址等信息;如因信息不完整或不真实导致无法核对相关情况的,视为无效意见。
5、本方案涉及的利益相关人依法享有听证权,如需听证请在公示期内提出申请;在接到申请并审核后,我局将在15个工作日内组织听证会。
沈阳市规划和国土资源局
2013年6月6日
![]() | |||||||||||||||||||||||||||||||||||||||||||||
| 友情链接: |
|
|
|
|



