![]() |
|
|
|
|
|
|
|
|
|
| 通知公告: |
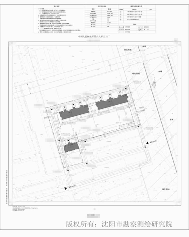
中国人民解放军第六九零三工厂职工经济适用房位于 和平区砂阳路25号的 住宅楼规划方案批前公示
[总平面规划方案]中国人民解放军第六九零三工厂职工经济适用房位于 和平区砂阳路25号的住宅楼规划方案批前公示
经沈阳市规划和国土资源局建设工程管理处审核,拟批准中国人民解放军第六九零三工厂职工经济适用房(单位)位于 和平区砂阳路25号(地址)的 住宅楼(项目)总平面规划方案,现对该项目总平面规划方案进行公示。
公示内容如下:
1、该图仅为示意图,以最终审批为准。
2、公示及收集意见日期:2013年6月26日——2013年7月10日(10个工作日)
3、利益相关人可在公示有效期内通过以下途径咨询或提出意见:
①咨询电话:024-83963670;
②信函请邮寄至: 沈阳市和平区南四经街149号建设工程管理处(以邮戳日期为准);
4、反馈意见请注明联系人真实姓名、电话、地址等信息;如因信息不完整或不真实导致无法核对相关情况的,视为无效意见。
5、本方案涉及的利益相关人依法享有听证权,如需听证请在公示期内提出申请;在接到申请并审核后,我局将在15个工作日内组织听证会。
沈阳市规划和国土资源局
2013年 6月26日
![]() | |||||||||||||||||||||||||||||||||||
| 友情链接: |
|
|
|
|



