![]() |
|
|
|
|
|
|
|
|
|
| 通知公告: |
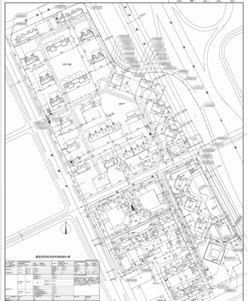
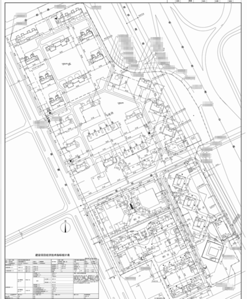
沈阳万科东阪置业有限公司位于沈阳市浑南区新隆街1号万科明天广场项目规划方案公示
经沈阳市规划和国土资源局浑南分局规划科审核,拟批准沈阳万科东阪置业有限公司位于沈阳市浑南区新隆街1号万科明天广场项目规划方案审批,现对项目总平面规划方案进行公示
公示内容如下
1.该图仅为示意图,以最终审批为准.
2.公示及收集意见日期:2017年2月20日-3月3日(10个工作日)
3.利益相关人可在公示有效期内通过以下途径咨询或者提出意见
①咨询电话:024-24820973
②信函请邮寄至:沈阳市浑南区世纪路15号沈阳市规划和国土资源局浑南分局规划科(以邮戳日期为准),邮编:110179
4.反馈意见请注明联系人真实姓名.电话.地址等信息;如因信息不完整或者不真实导致无法核对相关情况的,视为无效意见.
沈阳市规划和国土资源局浑南分局
2017年2月20日
注:
![]() | |||||||||||||||||||||||||||||||||||||||||||||
| 友情链接: |
|
|
|
|



