![]() |
|
|
|
|
|
|
|
|
|
| 通知公告: |
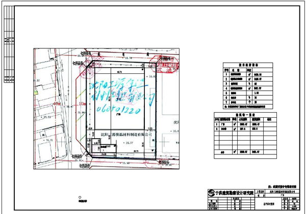
沈阳三源保温材料制造有限公司“厂房、办公楼”建设项目总平面规划方案批前公示
沈阳三源保温材料制造有限公司
“厂房、办公楼”建设项目总平面规划方案批前公示
经沈阳市规划和国土资源局于洪分局建审科审核,拟批准沈阳三源保温材料制造有限公司位于沈阳市于洪区沙岭街道沙兴路G区4号的“厂房、办公楼”总平面规划方案,现对该项目总平面规划方案进行公示。
公示内容如下:
1、该图仅为示意图,以最终审批为准。
2、公示及收集意见日期:2017年2月23日——2017年3月8日(10个工作日)
3、利益相关人可在公示有效期内通过以下途径咨询或提出意见:
①咨询电话:024-31013913;
②信函请邮寄至: 沈阳市于洪区沈大路63号 沈阳市规划和国土资源局于洪分局 建审科”收(请注明“规划公示”字样),邮编:110141(以邮戳日期为准);
③邮箱地址:176967736@qq.com。
4、反馈意见请注明联系人真实姓名、电话、地址等信息;如因信息不完整或不真实导致无法核对相关情况的,视为无效意见。
5、本方案涉及的利益相关人依法享有听证权,如需听证请在公示期内提出申请;在接到申请并审核通过后,我局将在15个工作日内组织听证会。
沈阳市规划和国土资源局于洪分局
2017年2月23日
![]() | |||||||||||||||||||||||||||||||||||||||||
| 友情链接: |
|
|
|
|



