![]() |
|
|
|
|
|
|
|
|
|
| 通知公告: |
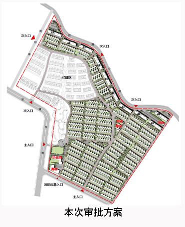
沈阳东部置业开发有限公司位于浑南区高坎街道的项目总平面规划方案变更公示
经沈阳市规划和国土资源局沈抚新城分局审核,拟批准沈阳东部置业开发有限公司位于沈阳市浑南区高坎街道的地块项目总平面规划方案变更,现对该项目总平面规划方案进行公示。
公示内容如下: 1、该图仅为示意图,以最终审批为准。 2、公示及收集意见日期: 3、利益相关人可在公示有效期内通过以下途径咨询或提出意见: ①咨询电话:024-88019153; ②信函请邮寄至:沈阳棋盘山开发区泗水街57号4楼规划分局规划科(以邮戳日期为准,请注明“规划公示”字样),邮编:110163; 4、反馈意见请注明联系人真实姓名、电话、地址等信息;如因信息不完整或不真实导致无法核对相关情况的,视为无效意见。
沈阳市规划和国土资源局沈抚新城分局 2017年3月21日
| ||||||||||||||||||||||||||||||||||||||||||
| 友情链接: |
|
|
|
|





