![]() |
|
|
|
|
|
|
|
|
|
| 通知公告: |
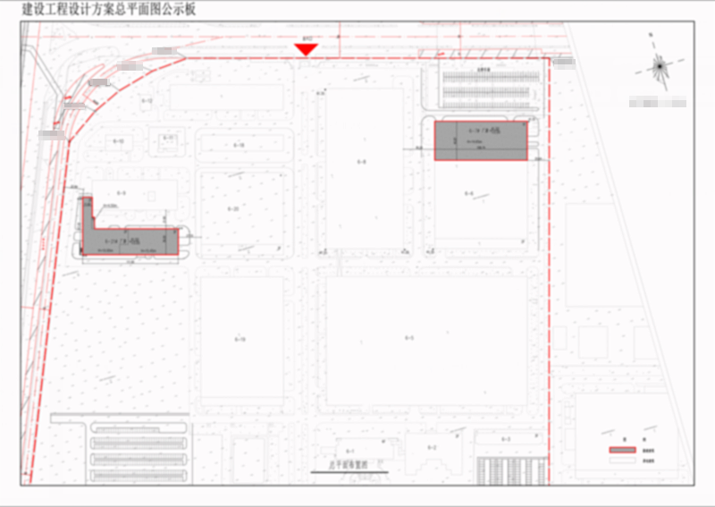
沈阳航天三菱汽车发动机制造有限公司位于东陵区(浑南新区)第B49号、第B50号-1地块建设工业项目规划方案批前公示
经沈阳市规划和国土资源局浑南分局规划科审核,拟批准沈阳航天三菱汽车发动机制造有限公司位于浑南新区 第B49号、第B50号-1 地块建设工业(6-7#厂房、6-21#厂房)项目规划方案,现对该项目总平面规划方案进行公示。
公示内容如下:
公示日期:2017年 2 月 28 日——2017年 3 月 13 日(10个工作日)
公示反映方式:在公示期间,有关单位或个人对该项目审批有任何意见或建议的,可通过以下方式反映:
1. 联系电话: 024-24222956
2. 传真:024-23786028 (请注明“规划公示”字样)
信件寄往“沈阳市浑南新区世纪路15号 沈阳市规划和国土资源局浑南分局 办公室”收(请注明“规划公示”字样),邮编:110179
沈阳市规划和国土资源局浑南分局
2017年 2 月 28 日
| |||||||||||||||||||||||||||||||||||||||||||||
| 友情链接: |
|
|
|
|


