![]() |
|
|
|
|
|
|
|
|
|
| 通知公告: |
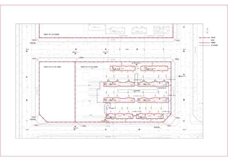
沈阳林海房地产开发有限公司位于东陵区(浑南新区)DL-13087号SHN03-02-27/28-2地块的居住、商业(一期)
经沈阳市规划和国土资源局浑南分局规划科审核,拟批准沈阳林海房地产开发有限公司位于东陵区(浑南新区)DL-13087号SHN03-02-27/28-2 地块的居住、商业(一期)规划方案,现对该项目总平面规划方案进行公示。
公示内容如下:
1、该图仅为示意图,以最终审批为准。
2、公示及收集意见日期:2017年4月13日——2017年4月26日(10个工作日)
3、利益相关人可在公示有效期内通过以下途径咨询或提出意见:
①咨询电话:024-24820955;
②信函请邮寄至:沈阳市浑南新区世纪路15号沈阳市规划和国土资源局浑南分局规划科(以邮戳日期为准) 邮编:110179;
4、反馈意见请注明联系人真实姓名、电话、地址等信息;如因信息不完整或不真实导致无法核对相关情况的,视为无效意见。
沈阳市规划和国土资源局浑南分局
2017年4月13日
![]() | |||||||||||||||||||||||||||||||||||||||||||||
| 友情链接: |
|
|
|
|



