![]() |
|
|
|
|
|
|
|
|
|
| 通知公告: |
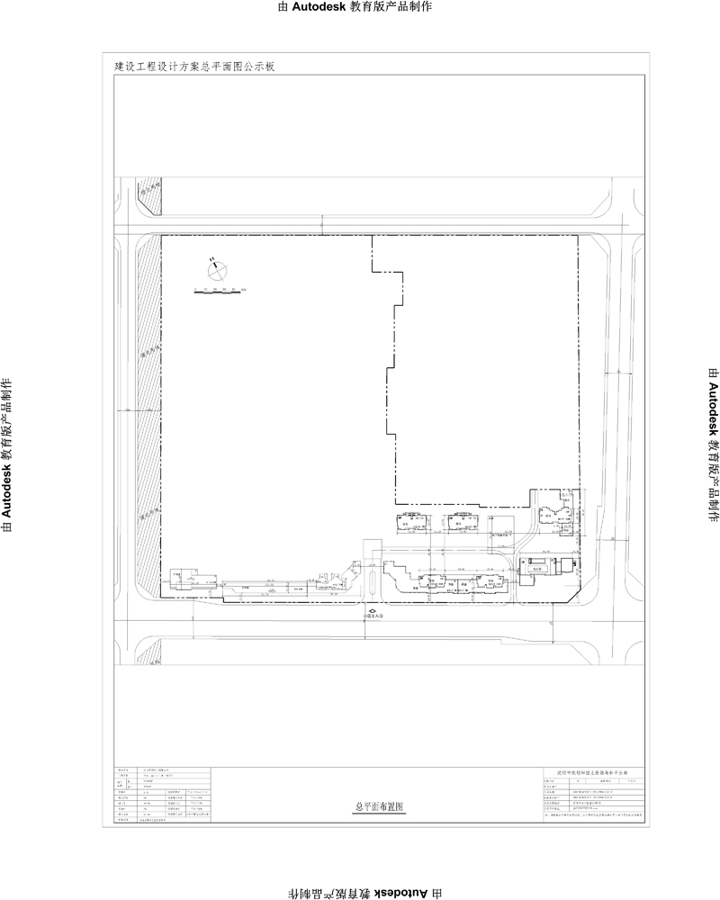
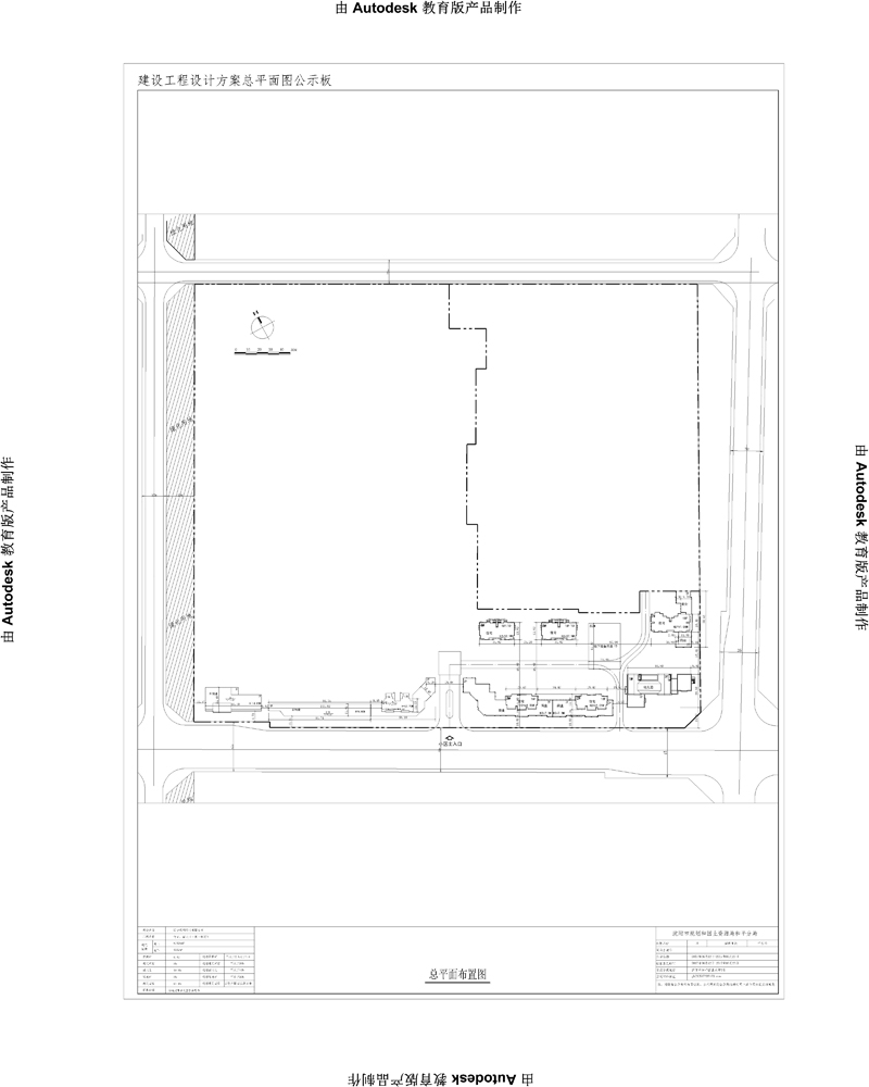
辽宁保利实业有限公司住宅、商业(一期一组团)建设工程许可证变更通知书批前公示
经沈阳市规划和国土资源局和平分局规划科审核,拟批准辽宁保利实业有限公司位于浑河站西街道的住宅、商业(一期一组团)项目规划方案,现对该项目总平面规划方案进行公示。
公示内容如下:
1、该图仅为示意图,以最终审批为准。
2、公示及收集意见日期:2017年6月13日——2017年6月26日(10个工作日)
3、利益相关人可在公示有效期内通过以下途径咨询或提出意见:
①咨询电话:024-31912073;
②信函请邮寄至:沈阳市和平区嘉兴街7号沈阳市规划和国土资源局和平分局规划科(以邮戳日期为准) 邮编:110000;
4、反馈意见请注明联系人真实姓名、电话、地址等信息;如因信息不完整或不真实导致无法核对相关情况的,视为无效意见。
沈阳市规划和国土资源局和平分局
2015年6月13日
![]() | |||||||||||||||||||||||||||||||||||||||||||||
| 友情链接: |
|
|
|
|



