![]() |
|
|
|
|
|
|
|
|
|
| 通知公告: |
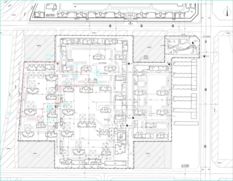
沈阳万科公园大道房地产开发有限公司位于于洪区渤海路的住宅、商业19#-23#,45#,54#-5楼批前公示
[总平面规划方案]沈阳万科公园大道房地产开发有限公司位于于洪区渤海路的住宅、商业19#-23#,45#,54#-5楼批前公示
经沈阳市规划和国土资源局建设工程管理处审核,拟批准沈阳万科公园大道房地产开发有限公司位于于洪区渤海路的住宅、商业19#—23#,45#,54#-5楼规划方案,现对该项目总平面规划方案进行公示并征求意见。
公示内容如下:
1、该图仅为示意图,以最终审批为准。
2、公示及收集意见日期:2015年 4月16日——2015年4月29日(10个工作日)
3、利益相关人可在公示有效期内通过以下途径咨询或提出意见:
①咨询电话:024-83963670;
②信函请邮寄至: 沈阳市和平区南四经街149号建设工程管理处(以邮戳日期为准);
4、反馈意见请注明联系人真实姓名、电话、地址等信息;如因信息不完整或不真实导致无法核对相关情况的,视为无效意见。
5、本方案涉及的利益相关人依法享有听证权,如需听证请在公示期内提出申请;在接到申请并审核后,我局将在15个工作日内组织听证会。
沈阳市规划和国土资源局
2015年4月16日
![]() | |||||||||||||||||||||||||||||||||||||||||||||
| 友情链接: |
|
|
|
|



