![]() |
|
|
|
|
|
|
|
|
|
| 通知公告: |
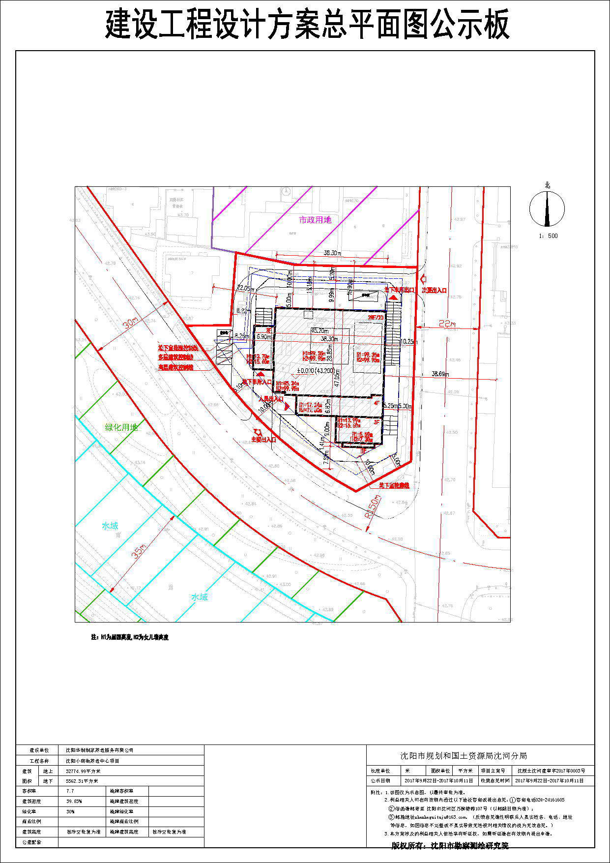
小南街养老中心项目规划方案公示
经沈阳市规划和国土资源局沈河分局规划科审核,拟批准沈阳华润润家养老服务有限公司位于沈河区小南街的沈阳小南街养老中心项目规划方案,现对该项目总平面规划方案进行公示。
公示内容如下:
公示日期:2017年 9月22日——2017年 10月11日(10个工作日)
公示反映方式:在公示期间,有关单位或个人对该项目审批有任何意见或建议的,可通过以下方式反映:
1. 联系电话: 024-24161605
2. 传真:024-24159306(请注明“规划公示”字样)
3. 信件寄往“沈阳市沈河区万柳塘路107号 沈阳市规划和国土资源局沈河分局 规划科”收(请注明“规划公示”字样),邮编:110015
沈阳市规划和国土资源局沈河分局
2017年9月22日
![]() | |||||||||||||||||||||||||||||||||||||||||||||
| 友情链接: |
|
|
|
|



