![]() |
|
|
|
|
|
|
|
|
|
| 通知公告: |
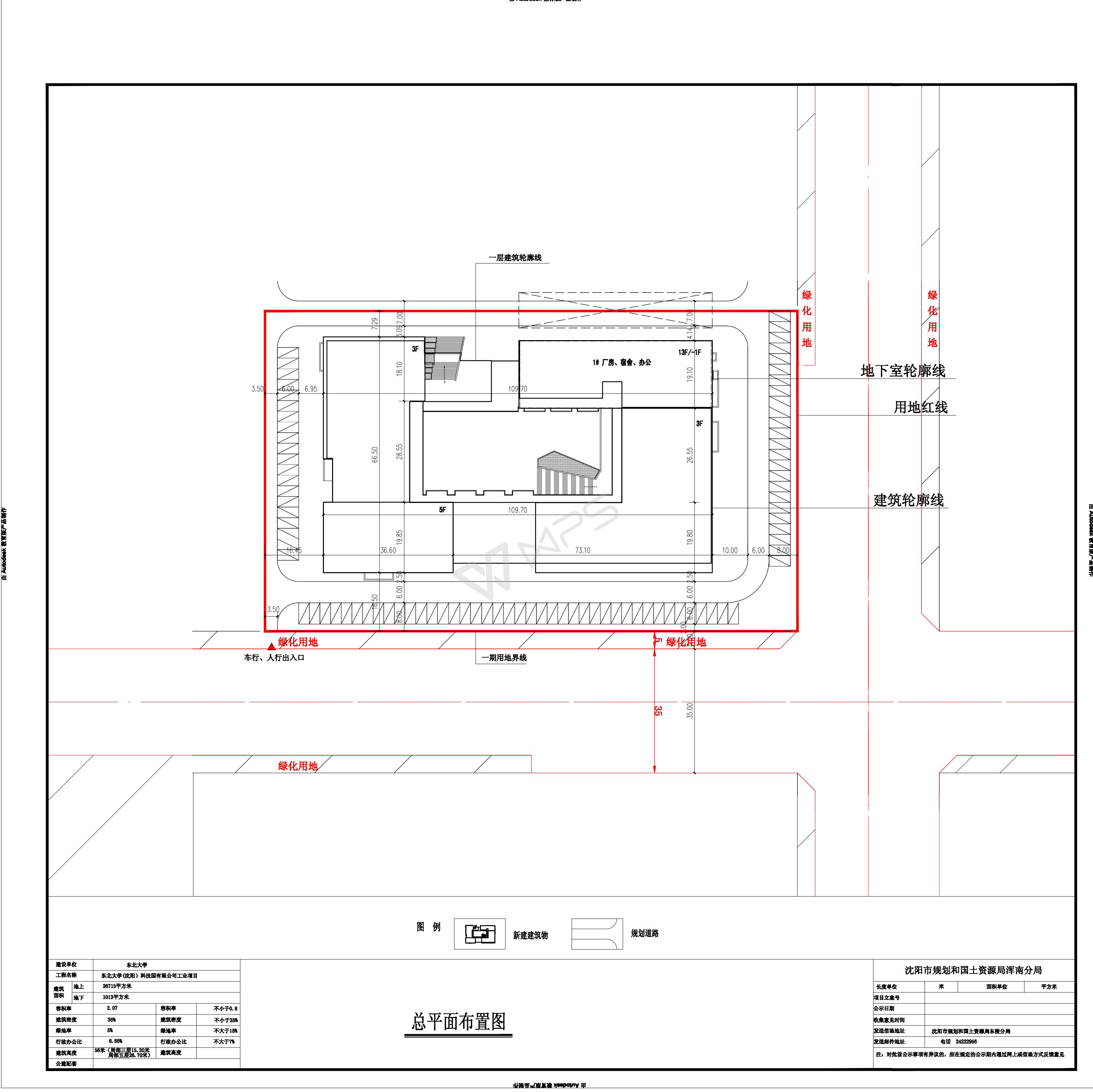
东北大学(沈阳)科技园有限公司位于浑南新区DLG-1342号GN-KJ-01-05-02地块建设工业项目规划方案批前公示
经沈阳市规划和国土资源局浑南分局规划科审核,拟批准东北大学(沈阳)科技园有限公司位于浑南新区DLG-1342号GN-KJ-01-05-02地块建设工业项目规划方案,现对该项目总平面规划方案进行公示。
公示内容如下:
公示日期:2017年11月20日——2017年12月1日(10个工作日)
公示反映方式:在公示期间,有关单位或个人对该项目审批有任何意见或建议的,可通过以下方式反映:
1. 联系电话: 024-24222956
2. 传真:024-23786028 (请注明“规划公示”字样)
信件寄往“沈阳市浑南新区世纪路15号 沈阳市规划和国土资源局浑南分局 办公室”收(请注明“规划公示”字样),邮编:110179
沈阳市规划和国土资源局浑南分局
2017年11月20日
| |||||||||||||||||||||||||||||||||||||||||||||
| 友情链接: |
|
|
|
|


