![]() |
|
|
|
|
|
|
|
|
|
| 通知公告: |
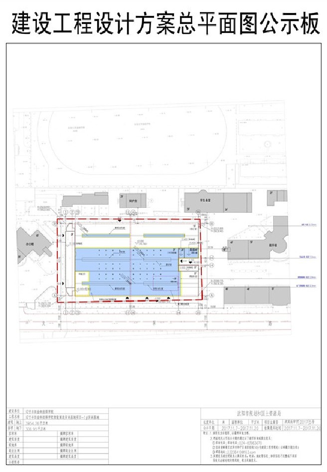
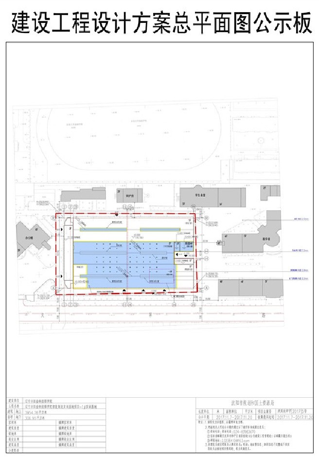
辽宁丰田金杯技师学院 位于 辽宁省沈阳市文萃路124号 辽宁丰田金杯技师学院智能制造实训基地项目-1#实训基地规划方案批前公示
[总平面规划方案] 辽宁丰田金杯技师学院 位于 辽宁省沈阳市文萃路124号 辽宁丰田金杯技师学院智能制造实训基地项目-1#实训基地规划方案批前公示
经沈阳市规划和国土资源局建设工程管理处审核,拟批准辽宁丰田金杯技师学院位于辽宁省沈阳市文萃路124号的辽宁丰田金杯技师学院智能制造实训基地项目-1#实训基地(项目)总平面规划方案,现对该项目总平面规划方案进行公示。
公示内容如下:
1、该图仅为示意图,以最终审批为准。
2、公示及收集意见日期:2017年11月7日—2017年11月20日(10个工作日)
3、利益相关人可在公示有效期内通过以下途径咨询或提出意见:
①咨询电话:024-83963670;
②信函请邮寄至:沈阳市和平区南四经街149号建设工程管理处(以邮戳日期为准);
4、反馈意见请注明联系人真实姓名、电话、地址等信息;如因信息不完整或不真实导致无法核对相关情况的,视为无效意见。
5、本方案涉及的利益相关人依法享有听证权,如需听证请在公示期内提出申请;在接到申请并审核后,我局将在15个工作日内组织听证会。
沈阳市规划和国土资源局
2017年11月7日
![]() | |||||||||||||||||||||||||||||||||||||||||||||
| 友情链接: |
|
|
|
|



