![]() |
|
|
|
|
|
|
|
|
|
| 通知公告: |
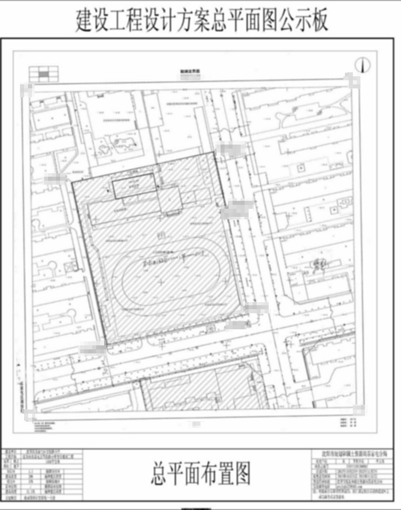
沈阳市苏家屯区雪松路小学的食堂建设工程项目总平面规划方案批前公示
经沈阳市规划和国土资源局苏家屯分局规划科审核,拟批准沈阳市苏家屯区雪松路小学位于沈阳市苏家屯区桂花街138号的食堂建设工程设计项目总平面规划方案,现对该项目总平面规划方案进行公示 公示内容如下: 公示日期:2013年 10月25日—2013年11月7日(10个工作日) 公示反映方式:在公示期间,有关单位或个人对该项目审批有任何意见或建议的,可通过以下方式反映: 1.联系电话: 024-89820086 2.传真:024-89820086 (请注明“规划公示”字样) 3.信件寄往“沈阳市苏家屯区雪松路42号 沈阳市规划和国土资源局 苏家屯分局规划科”收(请注明“规划公示”字样),邮编:110101
沈阳市规划和国土资源局苏家屯分局 2013年10月25日
| |||||||||||||||||||||||||||||||||||||||||||||||||||||||
| 友情链接: |
|
|
|
|



