![]() |
|
|
|
|
|
|
|
|
|
| 通知公告: |
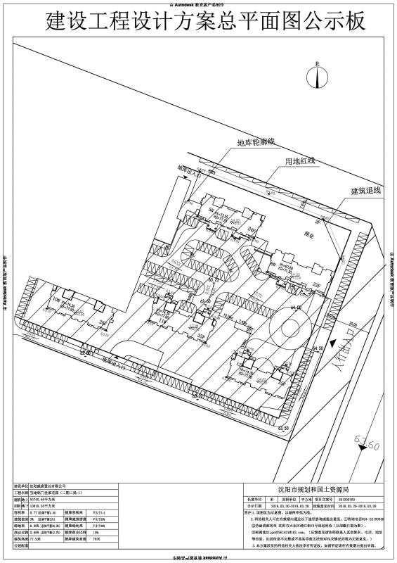
沈阳威嘉置业有限公司 宝地铭门世家花园项目工程批前公示
经沈阳市规划和国土资源局大东分局审核,拟批宝地铭门世家花园项目位于沈阳市大东区轩兴一路1号的大东方审字2018年001号建设项目设计方案,现对该项目总平面方案进行公示并征求意见。 公示内容如下: 1、该图仅为示意图,以最终审批为准。 2、公示及收集意见日期:2018年03月20日——2018年03月28日(7个工作日) 3、利益相关人可在公示有效期内通过以下途径咨询或提出意见: ①咨询电话:024-62199948; ②信函请邮寄至: 沈阳市大东区滂江街73号规划科; ③邮箱地址:ddghj_2008@126.com。 4、反馈意见请注明联系人真实姓名、电话、地址等信息;如因信息不完整或不真实导致无法核对相关情况的,视为无效意见。 5、本方案涉及的利益相关人依法享有听证权,如需听证请在公示期内提出申请;在接到申请并审核后,我局将在15个工作日内组织听证会。 沈阳市规划和国土资源局大东分局 2018年03月 20 日
| |||||||||||||||||||||||||||||||||||||||||||||
| 友情链接: |
|
|
|
|



