经沈阳市规划和国土资源局浑南分局规划科审核,拟批准沈阳华麦实业有限公司位于浑南区金阳街19号的“居住、商业(二期)”项目扩初规划方案,现对该项目总平面规划方案进行公示。
公示内容如下:
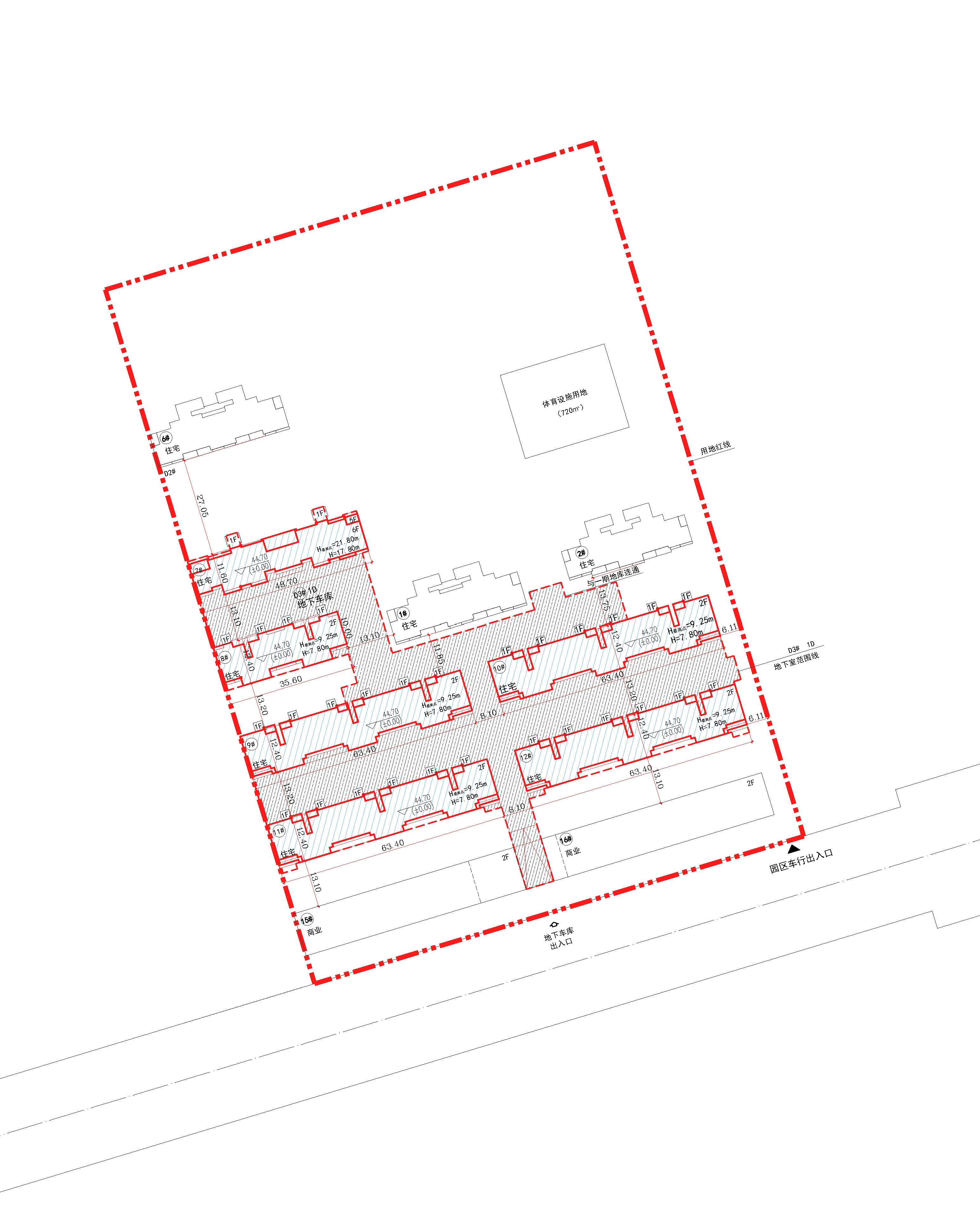
1、该图仅为示意图,以最终审批为准。
2、公示及收集意见日期:2017年7月7日——2017年7月20日(10个工作日)
3、利益相关人可在公示有效期内通过以下途径咨询或提出意见:
①咨询电话:024-24820973;
②信函请邮寄至:沈阳市浑南新区世纪路15号沈阳市规划和国土资源局浑南分局规划科(以邮戳日期为准) 邮编:110179;
4、反馈意见请注明联系人真实姓名、电话、地址等信息;如因信息不完整或不真实导致无法核对相关情况的,视为无效意见。
沈阳市规划和国土资源局浑南分局
2017年7月7日
建设单位 | 沈阳华麦实业有限公司 |
工程名称 | 居住、商业项目(二期) |
建筑 面积 | 地上 | 8602.82 m2 |
地下 | 7321.75 m2 |
容积率 | 0.31 | 摘牌容积率 | 总体≯2.7且≮1.2 |
建筑密度 | 14.36 | 摘牌建筑密度 | 总体≯30% |
绿地率 | 30.06 | 摘牌绿地率 | 总体≮30% |
商业比例 | 0 | 摘牌商业比例 | 总体≯5% |
建筑高度 | 17.8M | 摘牌建筑高度 | 以空管部门审核意见为准 |
公共配套(含物业) | 根据沈阳市浑南区民政局社区用房《协议书》,社区用房位于沈阳万锦新发展置业有限公司摘牌的CAT03-01-12号或CAT03-01-12-1号地块内,临时社区用房位于沈阳万锦新世纪置业有限公司建设的浑南区金阳街9号20#楼;根据沈阳市浑南区房产局《物业用房协议书》,物业用房位于沈阳万锦新发展置业有限公司摘牌的CAT03-01-12号或CAT03-01-12-1号地块内,临时物业用房位于15#楼1层局部和2层局部;根据沈阳市浑南区城市管理局《环卫垃圾设施审批单》临时垃圾用房位于16#楼1层局部、2层局部;待正式社区用房、物业用房、垃圾用房建成后,临时社区用房、临时物业用房、临时垃圾用房恢复为商业用房;体育设施用地面积720平方米在一期已设置。 |
注:
