![]() |
|
|
|
|
|
|
|
|
|
| 通知公告: |
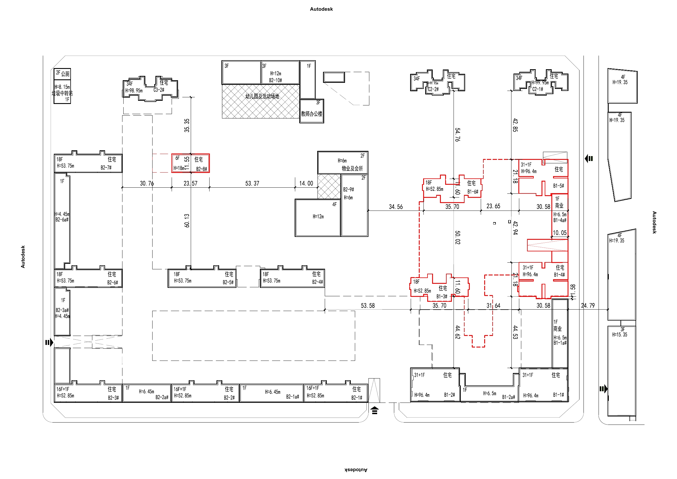
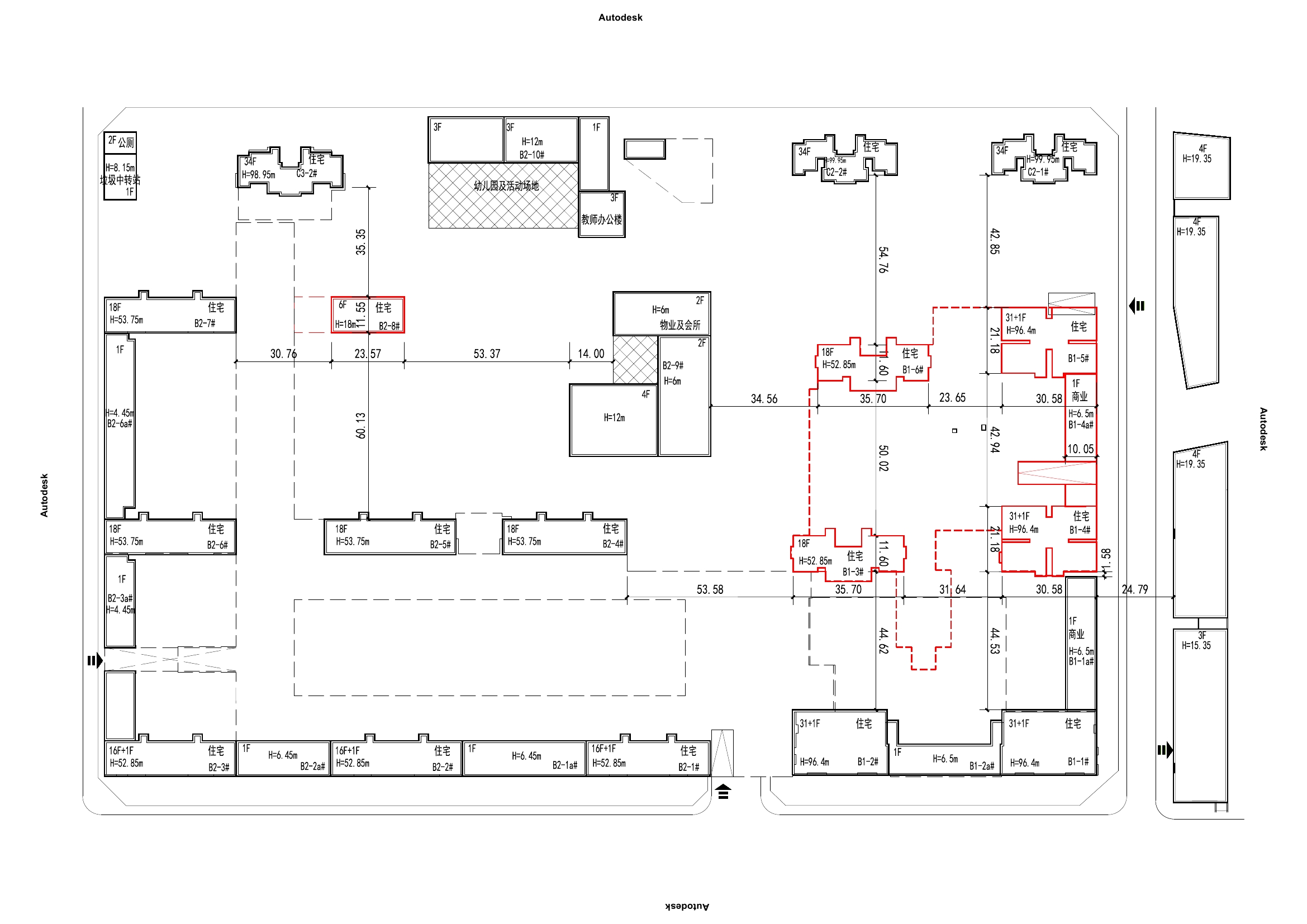
阳光一百置业(辽宁)有限公司“住宅、公建(沈阳阳光100新城三期B1组团3、4、4a、5、6及B2-8#楼”建设工程批前公示
阳光一百置业(辽宁)有限公司
“住宅、公建(沈阳阳光100新城三期B1组团3、4、4a、5、6及B2-8#楼”建设工程批前公示
经沈阳市规划和国土资源局于洪分局建审科审核,拟批准阳光一百置业(辽宁)有限公司位于沈阳市于洪区城东湖街道李官村“住宅、公建(沈阳阳光100新城三期B1组团3、4、4a、5、6及B2-8#楼)”建设工程规划许可证,现对该项目总平面规划方案进行公示。
公示内容如下:
公示日期:2018年5月14日——2018年5月25日(10个工作日)
公示反映方式:在公示期间,有关单位或个人对该项目审批有任何意见或建议的,可通过以下方式反映:
1.联系电话: 024-31013913
2.传真:024-25832933 (请注明“规划公示”字样)
3.信件寄至:沈阳市于洪区沈大路63号 沈阳市规划和国土资源局于洪分局建审科”收(请注明“规划公示”字样),邮编:110141
4.邮箱地址:188720504@qq.com
5.反馈意见请注明真实姓名、电话、地址等信息:如因信息不完整或不真实导致无法核对相关情况的,视为无效意见。
沈阳市规划和国土资源局于洪分局
2018年5月14日
![]() | |||||||||||||||||||||||||||||||||||||||||||||
| 友情链接: |
|
|
|
|



