![]() |
|
|
|
|
|
|
|
|
|
| 通知公告: |
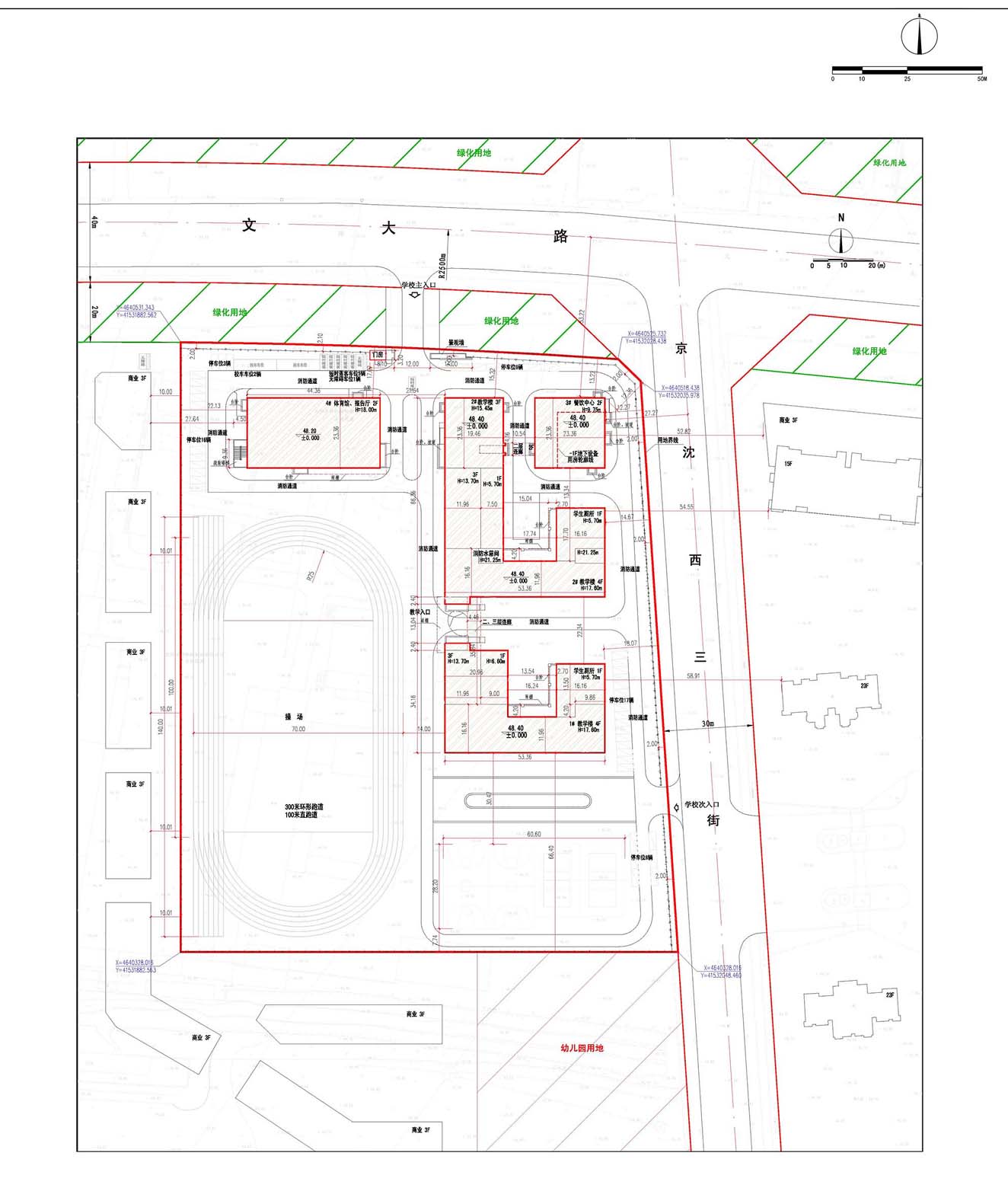
沈阳市虹桥初级中学北部校区建设工程项目方案批前公示
沈阳市虹桥初级中学北部校区建设工程项目方案批前公示
公示内容如下: 1、该图仅为示意图,以最终审批为准。 2、公示及收集意见日期:2018年6月1日——2018年6月14日(10个工作日) 3、利益相关人可在公示有效期内通过以下途径咨询或提出意见: ①咨询电话:024-86216100; ②信函请邮寄至: “沈阳市皇姑区松花江街皇姑区政府6楼 沈阳市规划和国土资源局皇姑分局规划科”收(请注明“规划公示”字样),邮编:110032(以邮戳日期为准); ③邮箱地址:ghk305@163.com。 4、反馈意见请注明联系人真实姓名、电话、地址等信息;如因信息不完整或不真实导致无法核对相关情况的,视为无效意见。 5、本方案涉及的利益相关人依法享有听证权,如需听证请在公示期内提出申请;在接到申请并审核通过后,我局将在15个工作日内组织听证会。 沈阳市规划和国土资源局皇姑分局
| |||||||||||||||||||||||||
| 友情链接: |
|
|
|
|



