无障碍辅助浏览工具条
通知公告:
·
闲置土地认定书沈自然资沈北闲认字[2025]3号
·
关于2025年度沈阳市工程系列自然资源和林业行业高级专业技术...
·
沈阳市自然资源局关于市级登记权限过期采矿许可证矿山企业的公告
建设项目方案批前批后公示
您的位置:
首页
>
在线办事
>
公示公告
>
建设项目方案批前批后公示
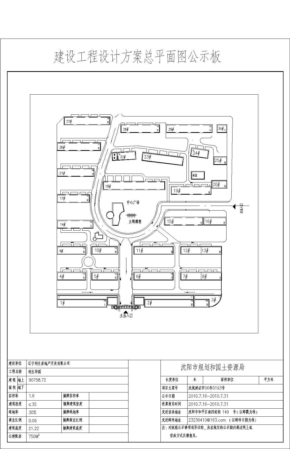
利生华园建设工程总平面图公示
时间:2010-08-27 来源:null 文字大小:
大
中
小
打印:
打印
友情链接:
------中央政府和国务院部门------
中央政府门户网站
自然资源部
住房和城乡建设部
------省政府部门------
省人民政府
省自然资源厅
省住房和城乡建设厅
------市政府部门------
沈阳市政府
主办:沈阳市自然资源局 技术支持单位:沈阳市大数据管理中心(沈阳市信息中心、沈阳市信用中心)
地址:沈阳市和平区南四经街149号 邮编:110003
辽ICP备13009550号-3
政务公开电话:024-83860427
网站维护电话:024-23291388 网站标识码:2101000022
辽公网安备:21010202000493
网站地图
建议使用Micosoft Internet Explore并以1366*768或更高分辨率浏览
投诉举报电话:83860427