![]() |
|
|
|
|
|
|
|
|
|
| 通知公告: |
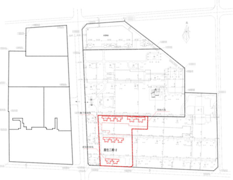
恒大鑫源(沈阳)置业有限公司位于于洪区千山西路北侧的恒大城二期-2项目总平面规划方案批前公示
经沈阳市规划和国土资源局建设工程管理处审核,拟批准恒大鑫源置业有限公司位于于洪区千山西路北侧的“恒大城居住二期-2项目”总平面规划方案,现对该项目总平面规划方案进行公示。
公示内容如下:
公示日期:2011年4月13日——2011年4月26日(10个工作日)
公示反映方式:在公示期间,有关单位或个人对该项目审批有任何意见或建议的,可通过以下方式反映:
1.联系电话: 024-28513096,024-23236914
2.传真:024-83961709 (请注明“规划公示”字样)
3.信件寄往“沈阳市和平区南四经街149号 沈阳市规划和国土资源局 建设工程管理处”收(请注明“规划公示”字样),邮编:110003
沈阳市规划和国土资源局
2011年 4月13日
| |||||||||||||||||||||||||||||||||||||||||||||||||||||||
| 友情链接: |
|
|
|
|


