![]() |
|
|
|
|
|
|
|
|
|
| 通知公告: |
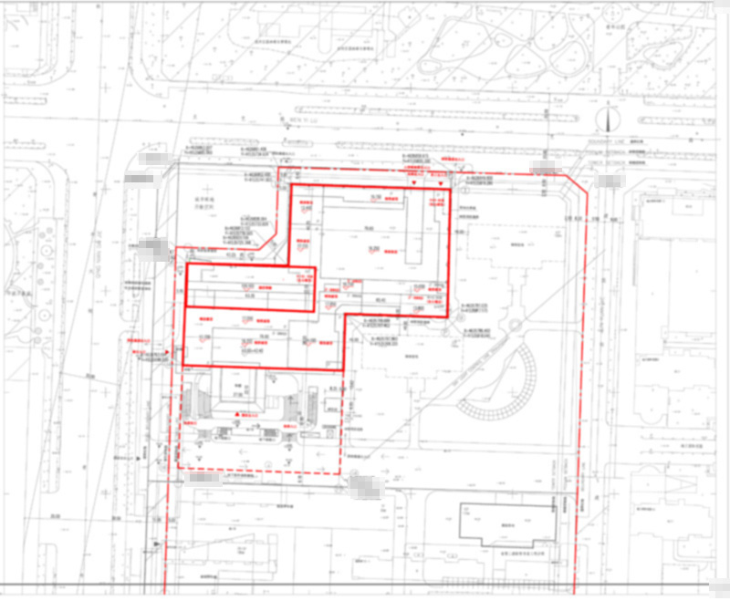
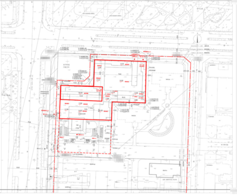
嘉里(沈阳)房地产开发有限公司的“沈阳香格里拉大酒店”建设项目总平面规划方案批前公示
经沈阳市规划和国土资源局建设工程管理处审核,拟批准嘉里(沈阳)房地产开发有限公司位于沈阳市沈河区建院街的沈阳香格里拉大酒店总平面规划方案,现对该项目总平面规划方案进行公示。
公示内容如下:
公示日期:2011年5月10日——2011年5月23日(10个工作日)
公示反映方式:在公示期间,有关单位或个人对该项目审批有任何意见或建议的,可通过以下方式反映:
1. 联系电话: 024-28513096,024-23236914
2. 传真:024-83961709 (请注明“规划公示”字样)
3. 信件寄往“沈阳市和平区南四经街149号 沈阳市规划和国土资源局 建设工程管理处”收(请注明“规划公示”字样),邮编:110003
沈阳市规划和国土资源局
2011年5月10日
![]() | |||||||||||||||||||||||||||||||||||||||||||||||||||||||
| 友情链接: |
|
|
|
|



