![]() |
|
|
|
|
|
|
|
|
|
| 通知公告: |
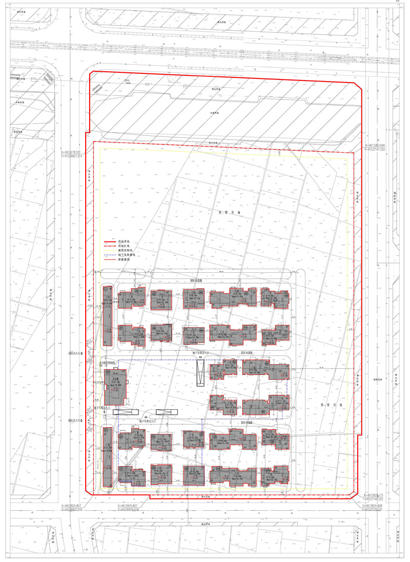
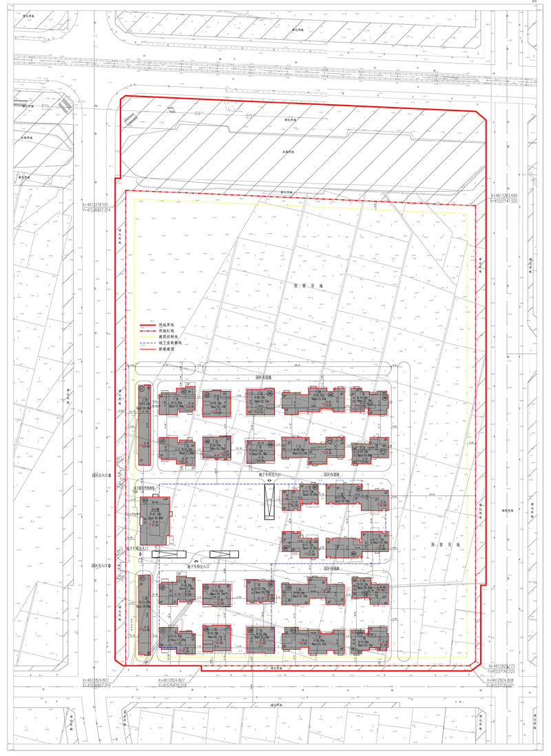
沈阳新经济产业园开发有限公司位于浑南区智慧二街400号的“工业(一期)”项目规划方案批前公示
经沈阳市规划和国土资源局东陵分局规划科审核,拟批准沈阳新经济产业园开发有限公司位于浑南区智慧二街400号的“工业(一期)”项目规划方案,现对该项目总平面规划方案进行公示。 公示内容如下: 公示日期:2014年10月24日——2014年11月6日(10个工作日) 公示反映方式:在公示期间,有关单位或个人对该项目审批有任何意见或建议的,可通过以下方式反映: 1. 联系电话: 024-83773728,024-83773731 2. 传真:024-83773726 (请注明“规划公示”字样) 3. 信件寄往“沈阳市浑南新区世纪路15号 沈阳市规划和国土资源局东陵分局 办公室”收(请注明“规划公示”字样),邮编:110179 沈阳市规划和国土资源局 2014年10月24日
注:
| |||||||||||||||||||||||||||||||||||||||||||||
| 友情链接: |
|
|
|
|



